Трёхэтажный дом из газобетона с гаражом 17,18 х 19,7
10 844 842 руб.Проект СДТ-1873
| Цена: | 10 844 842 руб. |
|---|---|
| Площадь: | 456 м2 |
| Материал стен: | газобетон |
| Кол-во этажей: | 3 |
| Кол-во спален: | 4 |
* цена строительства в оптимальной комплектации, стоимость проекта включена
Оцените проект
Назад в каталог
или смотреть
Каталог проектов от наших партнёров
Описание
Это здание не кажется единым строением, оно будто собрано из домиков, выполненных в разных архитектурных стилях. Каждая часть имеет свою кровлю. Крыши даже располагаются на уровнях разных этажей. Различается и отделка блоков сооружения, как по цветовым оттенкам, так и по облицовочному материалу. Такое архитектурное решение довольно оригинально. Дом не может не привлекать всеобщего внимания.
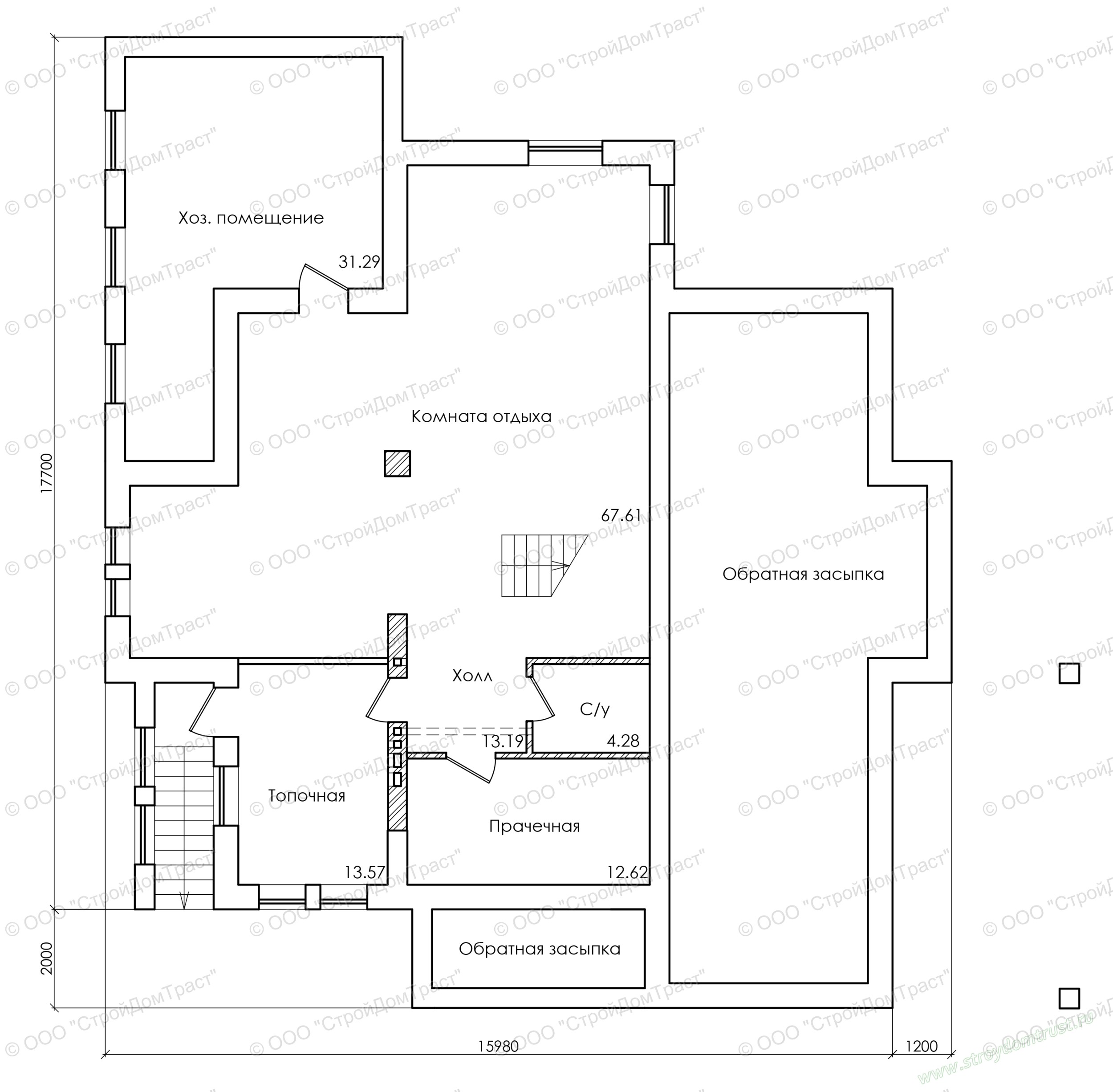
В доме 3 полноценных этажа и четвёртый мансардный. На самом верхнем ярусе расположена лишь комната отдыха, которая по размеру значительно меньше площадей всех других этажей.
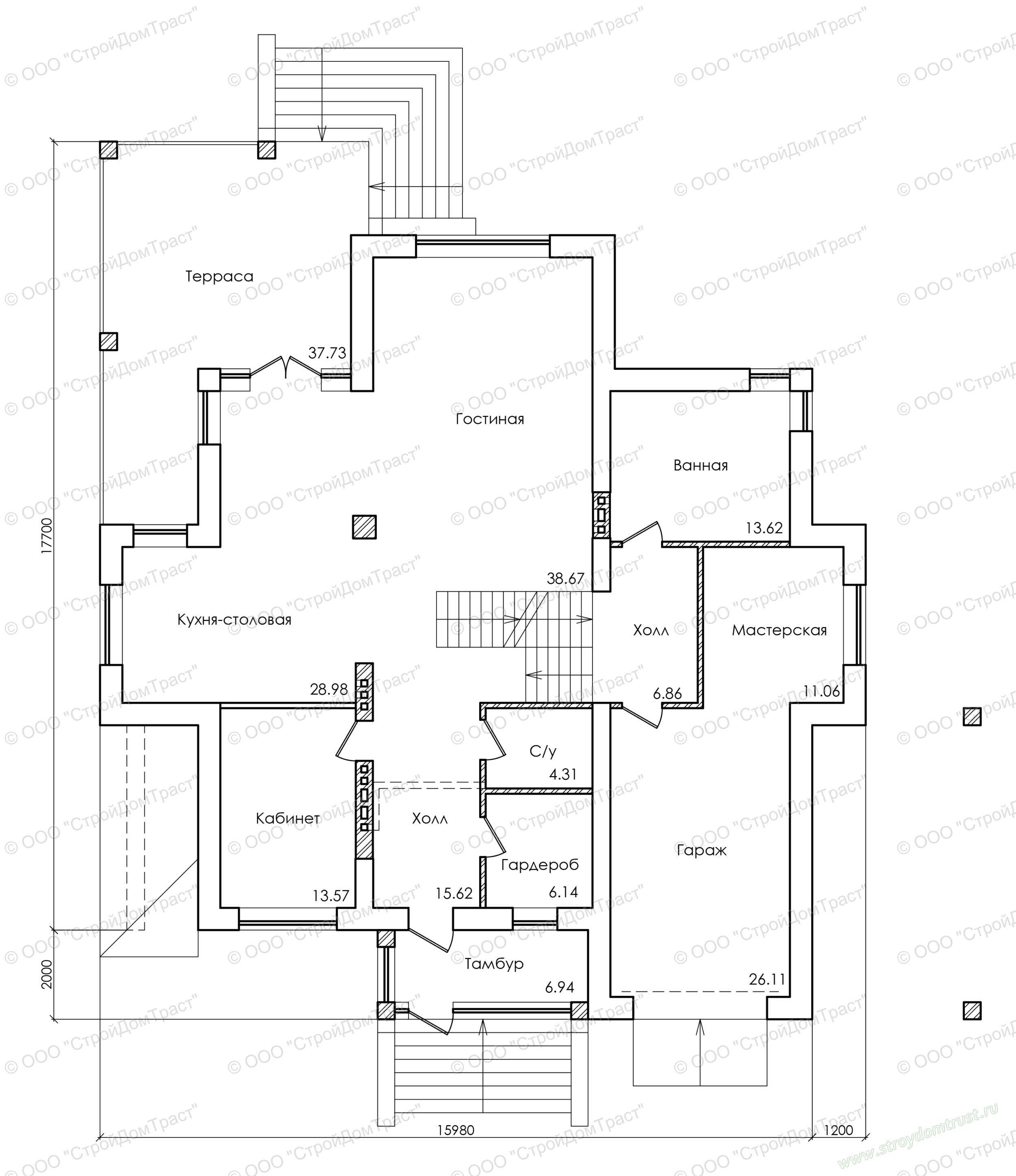
На первом этаже спроецирован гараж, совмещённый с мастерской, прихожая, холл, гардеробная, большая ванная. Здесь же имеется изолированный кабинет и оригинальной формы гостиная с выходом на террасу.
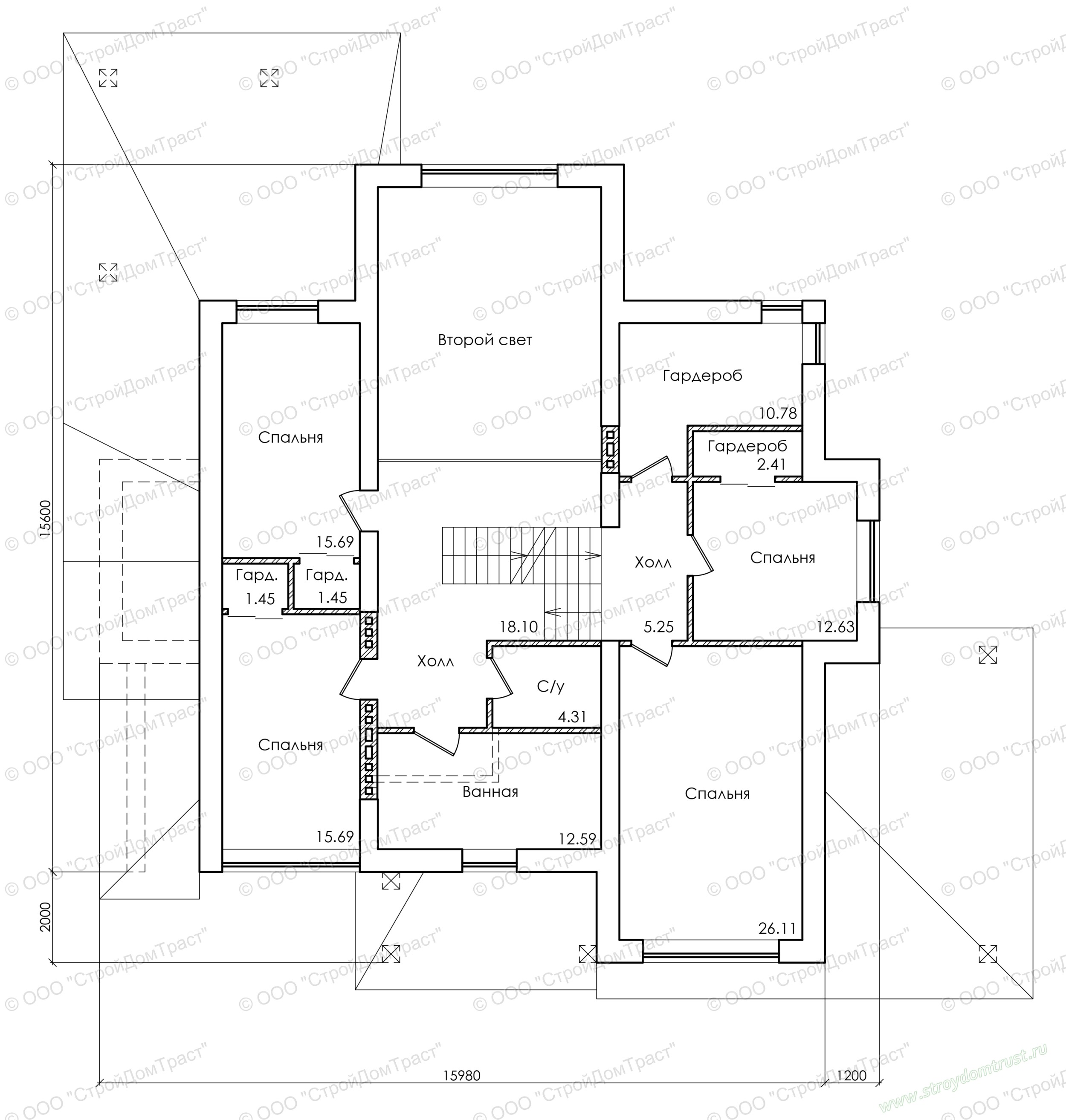
4 спальни спроектированы на втором этаже. Здесь предусмотрены ванная и раздельный санузел. Из гостиной сюда проходит второй свет.
Третий этаж включает в себя большую комнату отдыха и различные хозяйственные помещения.
Указана цена строительства 10 844 842 руб. в оптимальной комплектации



















