Дом из газобетона 10,34 х 11,7
4 449 790 руб.Проект СДТ-1869
| Цена: | 4 449 790 руб. |
|---|---|
| Площадь: | 156 м2 |
| Материал стен: | газобетон |
| Кол-во этажей: | 2 |
| Кол-во спален: | 4 |
* цена строительства в оптимальной комплектации, стоимость проекта включена
Оцените проект
Назад в каталог
или смотреть
Каталог проектов от наших партнёров
Описание
Этот современный дом представляет собой эклектичное сочетание классического и немецкого архитектурных стилей.
Дом выглядит весьма эффектно. Здание имеет традиционную прямоугольную форму, однако за счет многоскатной крыши, колонн на балконе и террасе оно приобретает интригующую объемность и многомерность. Декор стен выполнен по классическим канонам: светлая штукатурка, лепнина и декоративные карнизы. А вот украшения на фасаде — балки на фронтоне, перила из деревянных реек — это приметы немецкой архитектуры. Все вместе эти элементы образуют органичный ансамбль, и коттедж выглядит необычно и актуально.
В доме с комфортом разместится семья из 4–7 человек.
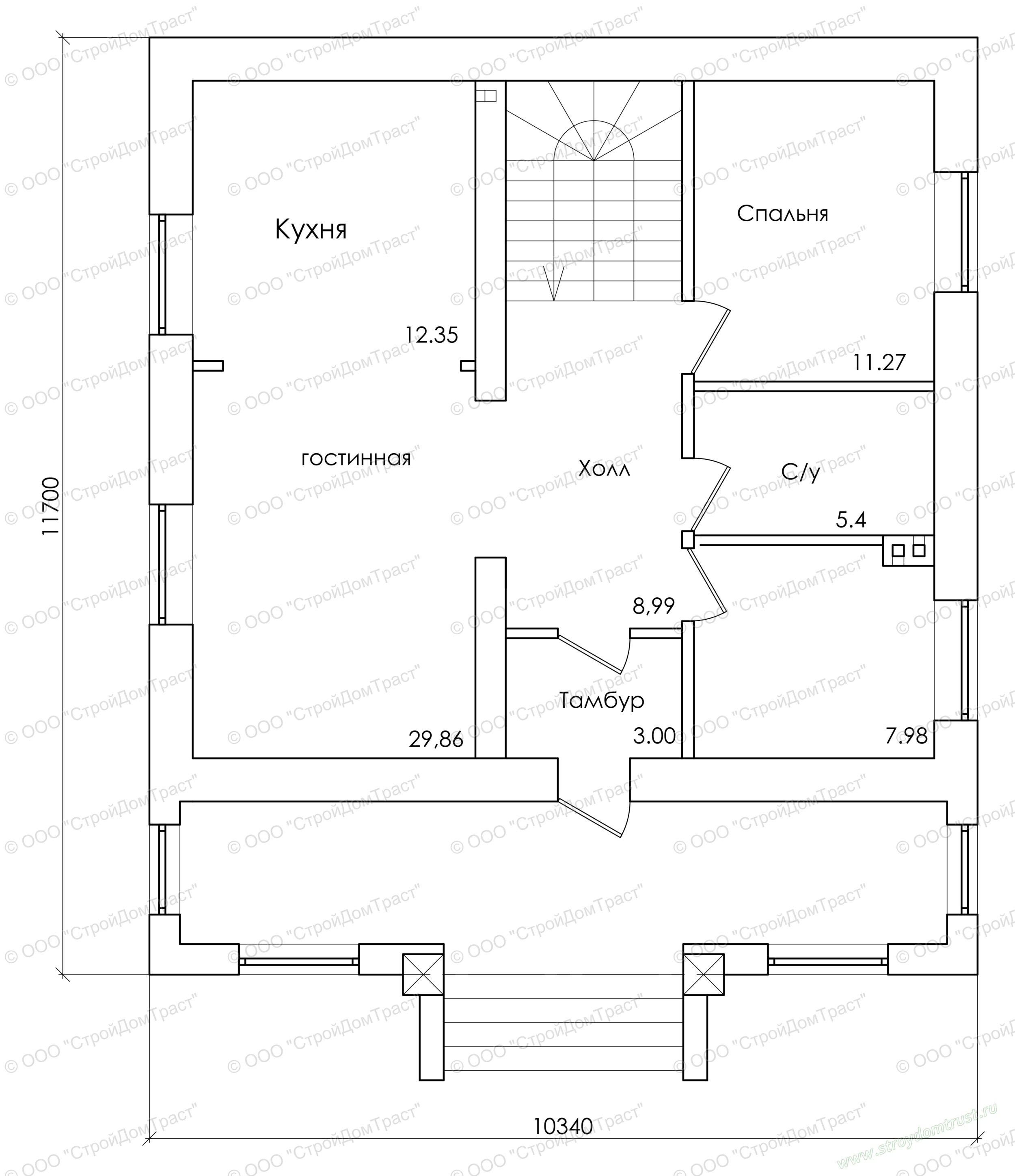
На первом этаже располагается просторная кухня-гостиная (42,2 кв.м). Комната представляет собой полное воздуха и света пространство, на котором обладатели дома смогут воплотить любые дизайнерские идеи. Также на этаже есть уютная спальня (11,3 кв.м), которую можно превратить в кабинет. Рядом находится санузел (5,4 кв.м). Кроме того, внизу есть небольшой тамбур (3 кв.м) и топочная (8 кв.м). Соединяет все помещения эргономичный холл (9 кв.м).
К дому примыкает крытая терраса (17,3 кв.м), где можно расположить зону отдыха для теплого времени года.
Наверху три комфортные спальни (14,7, 14,7 и 13,9 кв.м). Две спальни имеют выход на просторный балкон (17,3 кв.м). Также на этаже располагается большая общая гардеробная (10,7 кв.м) и санузел (6 кв.м).
Указана цена строительства 4 449 790 руб. в оптимальной комплектации

















