Элегантный дом из газобетона 14,06 х 18,1
По запросуПроект СДТ-1863
| Цена: | По запросу |
|---|---|
| Площадь: | 204 м2 |
| Материал стен: | газобетон |
| Кол-во этажей: | 2 |
| Кол-во спален: | 3 |
* цена строительства в оптимальной комплектации, стоимость проекта включена
Оцените проект
Назад в каталог
или смотреть
Каталог проектов от наших партнёров
Описание
Коттедж, представляющий собой современный взгляд на классику.
Стены дома отделаны облицовочным кирпичом двух контрастных цветов. Сейчас производители выпускают данный материал в широкой палитре, поэтому цвет дома может быть практически любым. С помощью кирпича темного цвета на фасаде имитируются украшения характерные для классического архитектурного стиля: лепнина на углах здания, декоративные карнизы, наличники на окнах. Крыльцо дома украшают колонны и кованые перила.
Планировка дома хорошо продумана и рассчитана на комфортное проживание семьи из 3–6 человек.
Внизу располагается просторная кухня-гостиная (38,4 кв.м). Комната имеет прямоугольную форму, что позволит обладателям дома без труда выполнить функциональное зонирование и подобрать дизайн помещения под свои пожелания и вкус. Из кухни можно выйти на крытую террасу (16,6 кв.м), на которой можно обедать на свежем воздухе в теплое время года. Также на первом этаже находятся компактный кабинет (7,3 кв.м), санузел (4,7 кв.м), постирочная (7,7 кв.м) и гардеробная (5,2 кв.м). Соединяет все помещения холл (15,5 кв.м) с прямоугольным эркером, в который для экономии места убрана лестница на второй этаж.
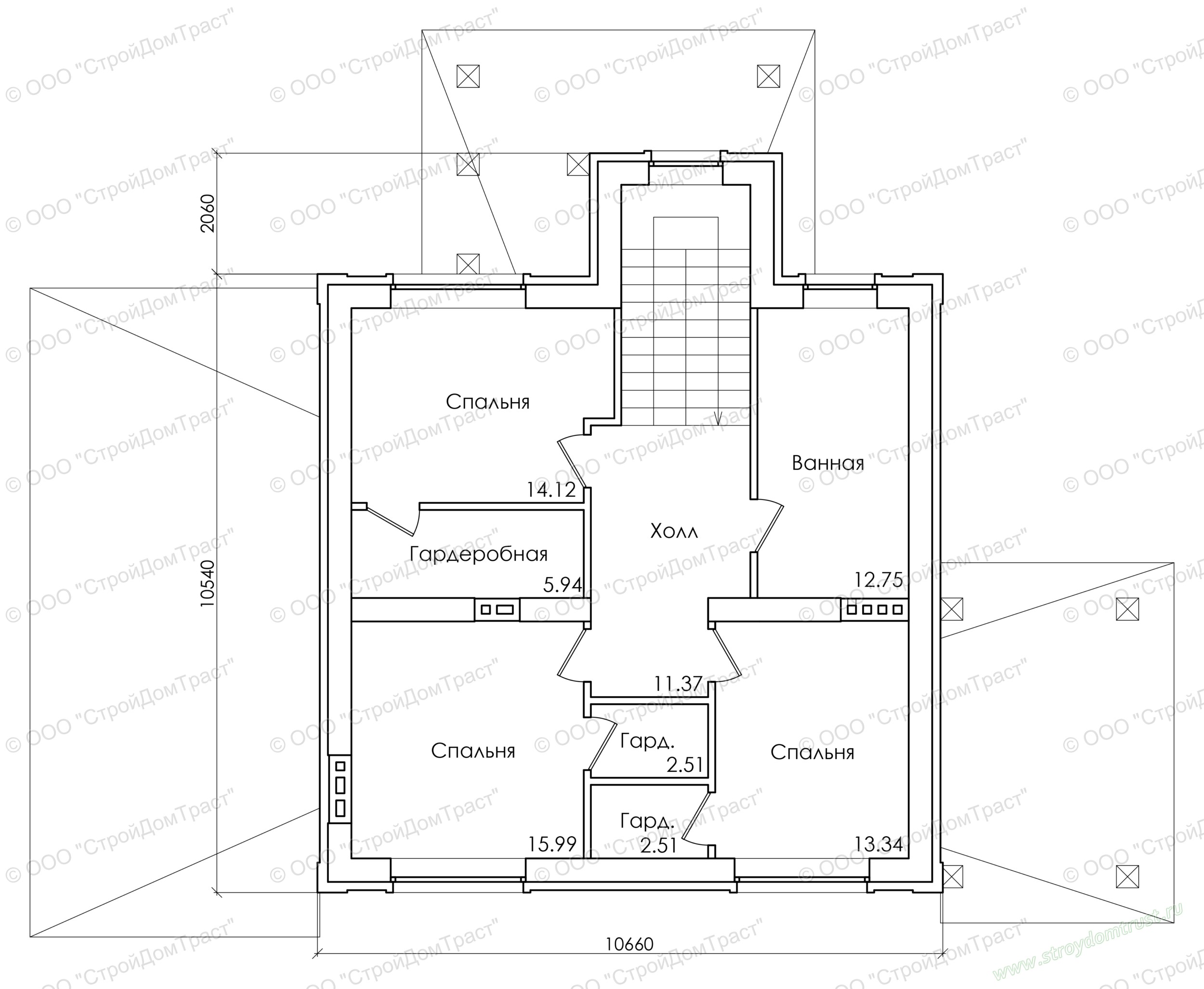
Наверху три комфортабельные спальни, каждая из которых имеет персональную гардеробную. Все комнаты практически одинаковой площади, что позволит легко распределить их между обитателями дома. Кроме того, на этаже предусмотрена большая ванная (12,7 кв.м).
Дом оборудован гаражом (22,5 кв.м) и топочной (7,2 кв.м).
Указана цена строительства По запросу в оптимальной комплектации

















