Дом со шпилем из газобетона 14,195 х 12,75
По запросуПроект СДТ-1867
| Цена: | По запросу |
|---|---|
| Площадь: | 208 м2 |
| Материал стен: | газоблоки |
| Кол-во этажей: | 2 |
| Кол-во спален: | 4 |
* цена строительства в оптимальной комплектации, стоимость проекта включена
Оцените проект
Назад в каталог
или смотреть
Каталог проектов от наших партнёров
Описание
Оригинальный дом, словно сошедший со страниц книги сказок. Этот коттедж придется по вкусу тем, кто ищет что-то особенное, и уж точно никогда не затеряется в ряду соседских домов.
Дом настолько необычен, что его хочется долго рассматривать, и с каждой секундой глаз находит все новые и новые детали. Здесь вам и башня со шпилем, и балкончик, с которого будто только что ушла Джульетта или сказочная принцесса, и круглый вход в дом, и романтичная терраса. Фасад отделан штукатуркой и облицовочным камнем так, чтобы создать эффект старинной постройки из камня. Стены украшены лепниной, декоративными карнизами и наличниками на окнах. На фронтоне и над окнами мансардного этажа сложные украшение из дерева. При всем этом изобилии и многообразии облик дома гармоничен, а украшения создают стройный ансамбль.
Не смотря на исключительную внешность коттеджа, его планировка хорошо продумана. В доме с комфортом разместится семья из 3–6 человек.
На первом этаже располагается очень светлая кухня-столовая (15 кв.м) с полукруглым эркером. Через арку с ней сообщается гостиная (18 кв.м) правильной прямоугольной формы, что позволит легко оформить ее в любом стиле. Из гостиной есть выход на необычную крытую террасу (13 кв.м), которую украшают деревянные колонны и перила с резными балясинами.
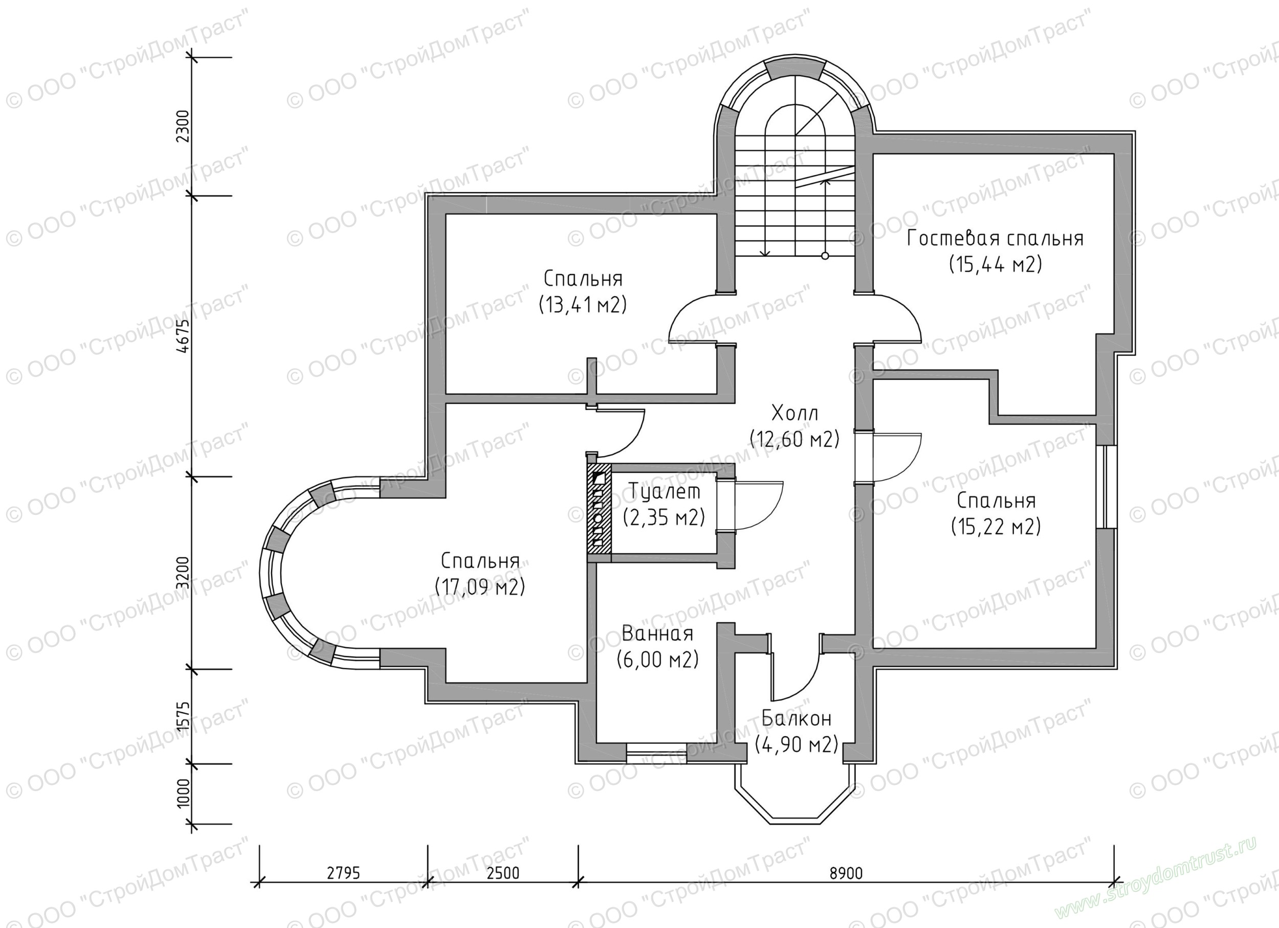
Так же на этаже есть гостевая спальня (12 кв.м), которая также может быть постоянной спальней одного из членов семьи или рабочим кабинетом. Рядом находятся санузел (2,6 кв.м), котельная (6 кв.м), тамбур (3 кв.м), прихожая и холл с эркером, в который отодвинута лестница.
Дом оборудован гаражом на два автомобиля (30,7 кв.м).
На мансардном этаже три спальни для хозяев: 17, 15 и 13 кв.м. Самая большая спальня имеет полукруглый эркер. На этаже есть еще одна гостевая спальня (15 кв.м), ванная (6 кв.м), туалет (2,3 кв.м). Все помещения соединяет эргономичный холл с полукруглым эркером и выходом на балкон.
В цокольном этаже предусмотрен небольшой подвал (9 кв.м).
Указана цена строительства По запросу в оптимальной комплектации












