Одноэтажный коттедж из газобетона 14,67 х 14,15
По запросуПроект СДТ-1857
| Цена: | По запросу |
|---|---|
| Площадь: | 129 м2 |
| Материал стен: | газобетон |
| Кол-во этажей: | 1 |
| Кол-во спален: | 3 |
* цена строительства в оптимальной комплектации, стоимость проекта включена
Оцените проект
Назад в каталог
или смотреть
Каталог проектов от наших партнёров
Описание
Лаконичный одноэтажный коттедж для семьи из 3–6 человек.
Подобные одноэтажные дома широко распространены в странах Запада из-за относительной простоты их возведения и содержания. В России они тоже обретают все большую популярность в последние годы.
Стены дома отделаны облицовочным кирпичом двух контрастных цветов, образующих узор в классическом стиле. Широкий выбор цветов этого отделочного материала открывает простор для фантазии и позволяет придумать сотни вариантов оформления фасада дома. Вальмовая крыша придает дому уютный вид.
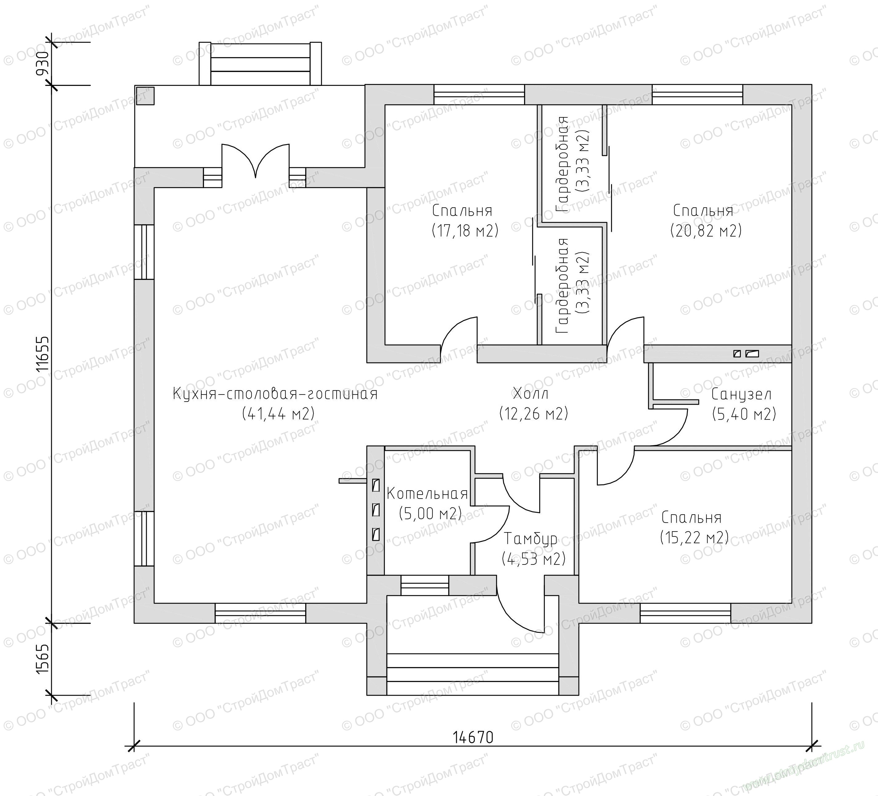
Дом имеет большую кухню-гостиную (41,4 кв.м), здесь поместится все необходимое для приема и приготовления пищи, а также для отдыха в кругу семьи или в компании гостей. Прямоугольная форма комнаты позволяет без труда выполнить функциональное зонирование. Из гостиной можно выйти на небольшую террасу на заднем дворе.
В коттедже предусмотрено три комфортные спальни: 21, 17 и 15 кв.м. Две большие спальни имеют персональные гардеробные (дополнительно + 3,3 кв.м).
Дом оборудован санузлом (5,4 кв.м), котельной (5 кв.м), при входе в дом есть удобный тамур-прихожая (4,5 кв.м).
Указана цена строительства По запросу в оптимальной комплектации










