Небольшой одноэтажный дом из газобетона 14,7 х 15,93
По запросуПроект СДТ-1866
| Цена: | По запросу |
|---|---|
| Площадь: | 135 м2 |
| Материал стен: | газобетон |
| Кол-во этажей: | 1 |
| Кол-во спален: | 3 |
* цена строительства в оптимальной комплектации, стоимость проекта включена
Оцените проект
Назад в каталог
или смотреть
Каталог проектов от наших партнёров
Описание
Комфортабельный одноэтажный коттедж для семьи из 3–5 человек.
Одноэтажные коттеджи давно заслужили уважение практичных людей по всему миру. Такие дома быстрее строятся, их обслуживание проще, а содержание экономичнее.
Фасад дома оформлен с помощью облицовочного кирпича контрастных цветов. Так как производители сейчас предлагают широчайшую палитру для данного отделочного материала, то цвет дома может быть практически любым. Узор на стенах имитирует украшения характерные для классического архитектурного стиля. На террасе колонны покрыты облицовочным камнем, перила выполнены из деревянных реек. Ассиметричная вальмовая крыша придает дому более современный вид.
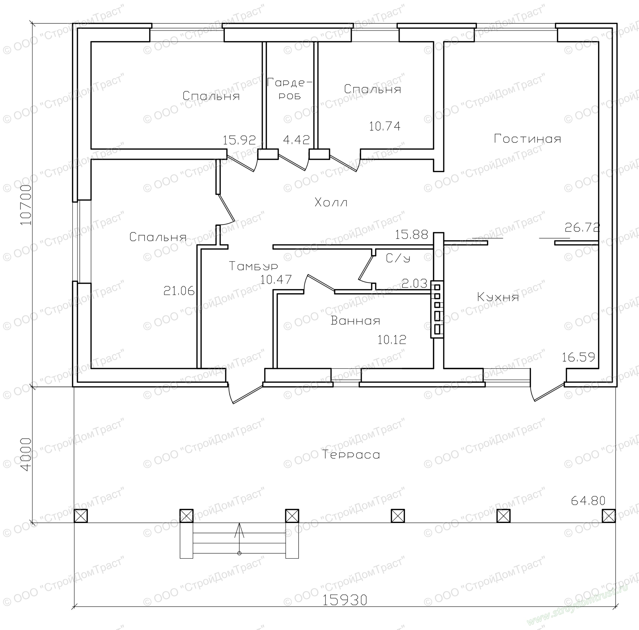
В доме просторная гостиная (26,7 кв.м) прямоугольной формы, что позволит легко оформить ее в любом стиле. С гостиной сообщается с помощью широкого дверного проема удобная кухня (16,6 кв.м), в которой поместится все необходимое для приготовления и приема пищи. Из кухне есть отдельный выход на террасу.
В доме три спальни: 21, 16 и 11 кв.м. Это позволит подобрать оптимальные варианты для всех жильцов.
Коттедж также оборудован раздельным санузлом (10 и 2 кв.м), холлом (16 кв.м) и тамбуром-прихожей (10 кв.м).
Изюминкой дома является большая терраса (65 кв.м), укрытая от непогоды под навесом. Здесь хватит места и для обеденной группы, чтобы есть на свежем воздухе в теплое время года, и для теннисного стола, и для шезлонгов. Таким образом, терраса, без сомнения, легко станет любимым местом отдыха всей семьи.
Указана цена строительства По запросу в оптимальной комплектации















