Дом из газобетона 14,8 х 13,90
4 364 684 руб.Проект СДТ-1860
| Цена: | 4 364 684 руб. |
|---|---|
| Площадь: | 105 м2 |
| Материал стен: | газоблоки |
| Кол-во этажей: | 1 |
| Кол-во спален: | 3 |
* цена строительства в оптимальной комплектации, стоимость проекта включена
Оцените проект
Назад в каталог
или смотреть
Каталог проектов от наших партнёров
Описание
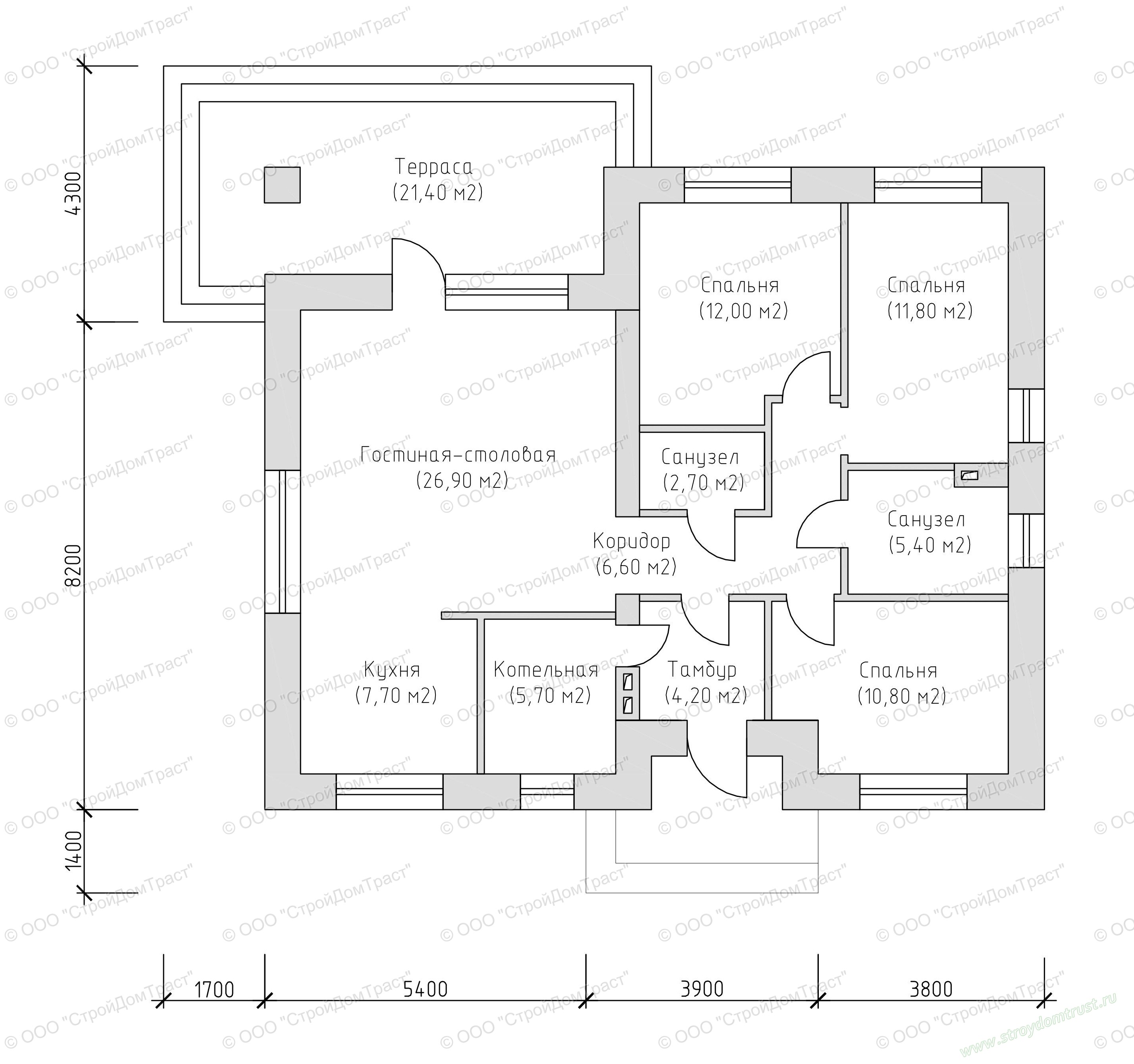
Перед вами компактный коттедж для небольшой семьи или дачный дом.
Площадь дома — 105 кв.м. Благодаря тому, что все помещения расположены на одном уровне, отпадает необходимость в лестнице и экономится жизненное пространство. Кроме того, снижаются расходы во время отопительного сезона, упрощается ремонт и обслуживание.
Фасад оформлен облицовочным кирпичом и деревянным сайдингом естественного цвета. Вальмовая крыша имеет актуальные сейчас широкие выносы. А белый декоративный карниз под крышей и такого же цвета водосточные трубы являются яркими деталями и довершают образ уютного и экологичного жилища.
В коттедже есть все необходимое для комфортного проживания семьи из 3–5 человек.
В доме три уютные спальни почти одинакового размера, что позволит легко распределить их между будущими жильцами. Рядом с комнатами раздельный санузел (5,4 кв.м и 2,7 кв.м).
Гостиная-столовая и кухня представляют собой единое пространство (36 кв.м), полное света и воздуха. Кухня выделена с помощью небольшой перегородки для облегчения функционального зонирования помещения. Эта комната отлично подходит, как для вечеров в кругу семьи, так и для встречи с компанией друзей. Из гостиной есть выход на террасу под навесом (21,4 кв.м). Здесь можно разместить обеденную группу для трапез на свежем воздухе и другие вещи, необходимые для полноценного отдыха в теплое время года.
Дом также оборудован тамбуром-прихожей (4,2 кв.м), котельной (5,7 кв.м), все помещения соединяет эргономичный холл (6,6 кв.м).
Указана цена строительства 4 364 684 руб. в оптимальной комплектации











