Двухэтажный дом: проект с асимметричной планировкой
5 254 935 руб.Проект СДТ-1133
| Цена: | 5 254 935 руб. |
|---|---|
| Площадь: | 205,8 м2 |
| Материал стен: | газобетон |
| Кол-во этажей: | 2 |
| Кол-во спален: | 5 |
* цена строительства в оптимальной комплектации, стоимость проекта включена
Оцените проект
Назад в каталог
или смотреть
Каталог проектов от наших партнёров
Описание
Современный стильный коттедж с необычной планировкой и урбанистическим дизайном площадью 205,8 кв. м. Внешний облик особняка подходит для постройки в городской черте. Около дома оборудована крытая площадка для семейного авто. Центральную часть первого этажа занимает большая гостиная комната площадью 34 кв. м. с отдельным выходом на террасу, ведущую в сад. Необычная форма гостиной позволяет придать ей уникальное оформление и создать неповторимое ощущение гармонии в доме. Данный проект прекрасно подойдет для воплощения на участках необычной формы и рельефа.
Слева от гостиной расположен гостевой блок, состоящий из гостевой комнаты, санузла и меленького подсобного помещения. Справа от гостиной – кухня-столовая общей площадью 31,3 кв. м.
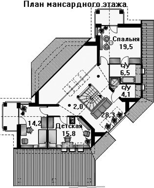
Мансардный этаж разделен на два блока, в одном из них размещена «хозяйская» спальня площадью 19,5 кв. м. с собственным санузлом. Во втором блоке находятся две детских комнаты – 14,2 кв. м. и 15,8 кв. м. На этаже так же имеется дополнительный общий санузел.
Фундамент - ленточный монолитный ж/б
Перекрытия - монолитные ж/б
Покрытие кровли - металлочерепица
Наружная отделка - штукатурка
Высота первого этажа - 2.7 м ,
мансардного - 1.1 м / 2.7 м
Указана цена строительства 5 254 935 руб. в оптимальной комплектации














