Дом из газобетона 15,5 х 13,21
По запросуПроект СДТ-1853
| Цена: | По запросу |
|---|---|
| Площадь: | 210 м2 |
| Материал стен: | газобетон |
| Кол-во этажей: | 2 |
| Кол-во спален: | 5 |
* цена строительства в оптимальной комплектации, стоимость проекта включена
Оцените проект
Назад в каталог
или смотреть
Каталог проектов от наших партнёров
Описание
Необычный дом в современном скандинавском стиле для большой семьи из 5–7 человек.
Коттедж имеет простую прямоугольную форму и двускатную крышу. На фасаде сочетаются облицовочный кирпич и древесина естественных цветов. В доме много окон, что обеспечивает прекрасное естественное освещение. Окна на первом и втором этажах имеют разную форму, которая подчеркивается за счет декора стен. При всей лаконичности декора дом выглядит современным и экологичным.
Для скандинавского стиля характерна рациональность и практичность. Поэтому планировка дома хорошо продумана.
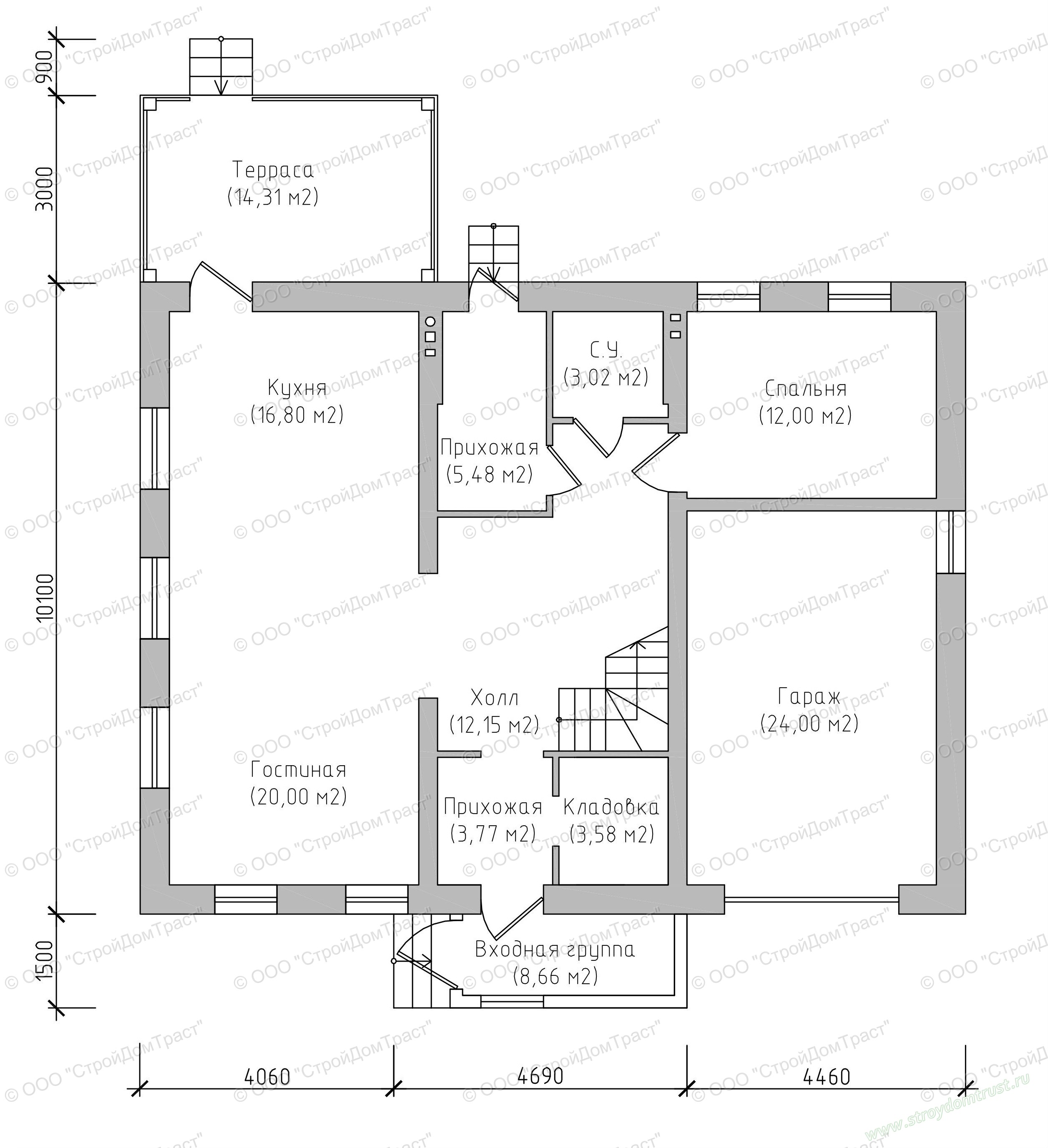
На первом этаже располагается просторная и очень светлая кухня-гостиная (38 кв.м). Помещение имеет прямоугольную форму, что позволит оформить его в любом стиле и облегчит выполнение функционального зонирования. Прямо из гостиной моно выйти на крытую террасу (14,3 кв.м), куда можно перенести трапезу в теплое время года и/или обустроить прекрасную зону отдыха.
Также на этаже есть уютная спальня (12 кв.м), которая может использоваться, как кабинет. Рядом со спальней небольшой санузел (3 кв.м). Дом имеет два входа и для каждого есть своя прихожая, что позволяет с комфортом переодеться как после возвращения домой, так и после садовых работ. Кроме того, на этаже предусмотрена небольшая кладовая, ее можно использовать в качестве гардеробной для верхней одежды. А в просторном холле легко разместить шкаф или дополнительную мини-гостиную.
В доме есть гараж на два автомобиля.
Наверху четыре удобные спальни (18.2, 18.2, 14.8 и 14.4 кв.м). Главная спальня имеет персональную гардеробную (6,8 кв.м) и санузел (7,1 кв.м). Также на этаже находится общий санузел (2,2 кв.м). Все помещения соединяет холл (19,5 кв.м) с небольшой галереей и местом, где поместится общий шкаф для одежды.
Указана цена строительства По запросу в оптимальной комплектации











