Дом из газобетона 17,23 х 20
По запросуПроект СДТ-1851
| Цена: | По запросу |
|---|---|
| Площадь: | 303 м2 |
| Материал стен: | газоблоки |
| Кол-во этажей: | 2 |
| Кол-во спален: | 3 |
* цена строительства в оптимальной комплектации, стоимость проекта включена
Оцените проект
Назад в каталог
или смотреть
Каталог проектов от наших партнёров
Описание
Просторный современный дом для гостеприимной семьи с хорошим вкусом.
Дом имеет прямоугольную форму и правильные пропорции. Облик дома стильный и лаконичный без излишеств, при этом дом выглядит довольно ярким благодаря сочетанию отделочных материалов контрастных цветов.
В этом коттедже с комфортом разместится семья из 3–7 человек.
На первом этаже находится кухня-гостиная (58 кв.м). Необычная, но при этом продуманная форма комнаты позволит Вам реализовать смелые и интересные дизайнерские идеи при ремонте. Зона кухни частично ограничена. Это позволяет визуально отделить ее от остального помещения, но не создает жесткие рамки при выборе кухонной мебели и техники. Из гостиной можно выйти на террасу под навесом (25 кв.м), которая прекрасно подойдет для трапез на свежем воздухе в теплое время года. Также на этаже находятся уютный кабинет (17 кв.м), удобный тамбур с гардеробной (7+4 кв.м), компактный санузел (4 кв.м). Все помещения соединяет эргономичный холл (10,6 кв.м).
К дому примыкает гараж для нескольких автомобилей (41,23 кв.м). В гараж можно попасть как с задней стороны двора, так и из дома — это удобное решение для суровых российских зим.
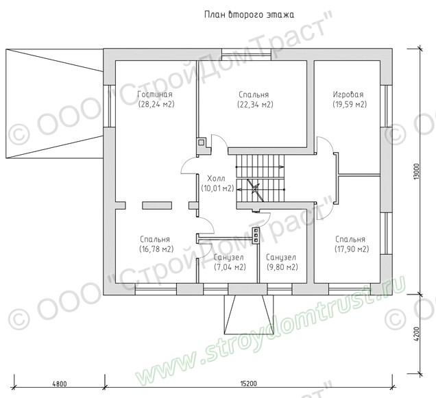
Наверху три спальни разного размера и формы. Главная спальня состоит из двух сообщающихся помещений: дополнительной гостиной (28,2 кв.м) и собственно спальни (16,7 кв.м). Также комната имеет свой персональный санузел. Кроме того, на этаже находится игровая комната (19,6 кв.м), общий санузел (9,8 кв.м), холл (10 кв.м).
Подвал разделен на три хозяйственных помещения разной формы и площади (59, 38,6 и 37,5 кв.м). Обладатели дома смогут использовать их на свое усмотрение, разместив там, например, тренажерный зал, кладовую и др.
Указана цена строительства По запросу в оптимальной комплектации




















