Дом из газобетона с навесом для авто, 17 х 22 метра
По запросуПроект СДТ-1855
| Цена: | По запросу |
|---|---|
| Площадь: | 527 м2 |
| Материал стен: | газобетон |
| Кол-во этажей: | 2 |
| Кол-во спален: | 1 |
* цена строительства в оптимальной комплектации, стоимость проекта включена
Оцените проект
Назад в каталог
или смотреть
Каталог проектов от наших партнёров
Описание
Очень просторный современный коттедж для тех, кто привык жить и отдыхать в максимальном комфорте.
Фасад дома оформлен декоративной штукатуркой и облицовочным камнем. Окна и двери декорированы наличниками. Широкий вынос крыши над фронтоном украшен декоративными балками. Террасу опоясывают невысокие колонны и деревянные перила. К дому примыкает навес для одного автомобиля. Облик коттеджа стильный и респектабельный.
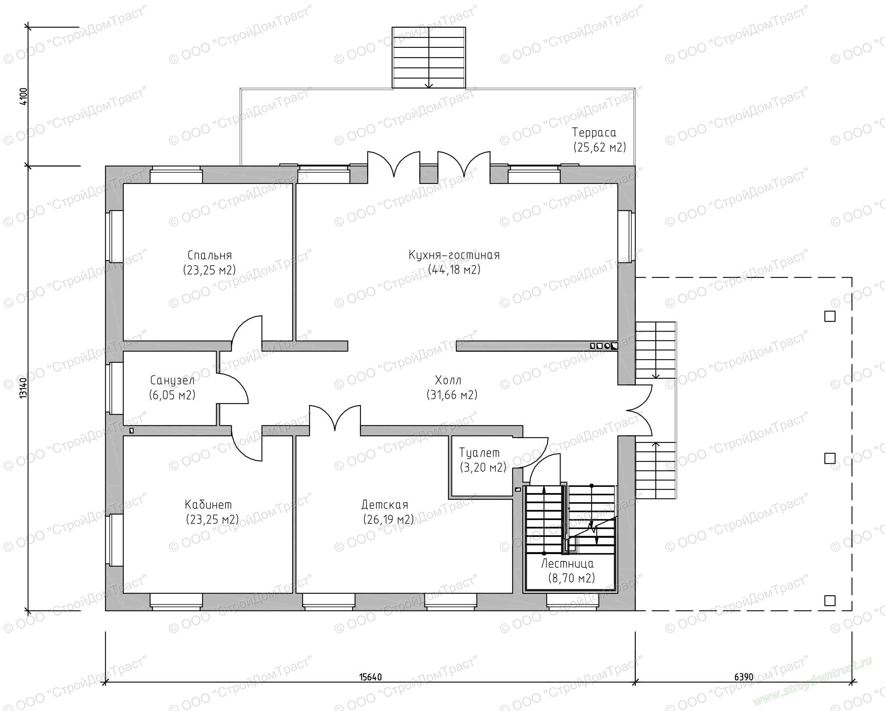
На первом этаже располагается кухня-гостиная (44,2 кв.м) правильной прямоугольной формы. Эта комната может представлять собой единое пространство или быть разделена на зону приготовления пищи и зону отдыха с помощью перегородки. Из комнаты предусмотрено два выхода на террасу (из кухни и из гостиной, в случае их разделения). На террасе (26,6 кв.м) получится великолепная зона отдыха для теплого времени года: здесь можно разместить обеденную группу и/или шезлонги.
Также на этаже находятся уютная спальня для взрослых (23,3 кв.м), рабочий кабинет (23,3 кв.м) и большая детская (26,2 кв.м). Кроме того, здесь предусмотрен туалет (3,2 кв.м) и еще один санузел (6 кв.м). Соединяет все помещения холл (32 кв.м).
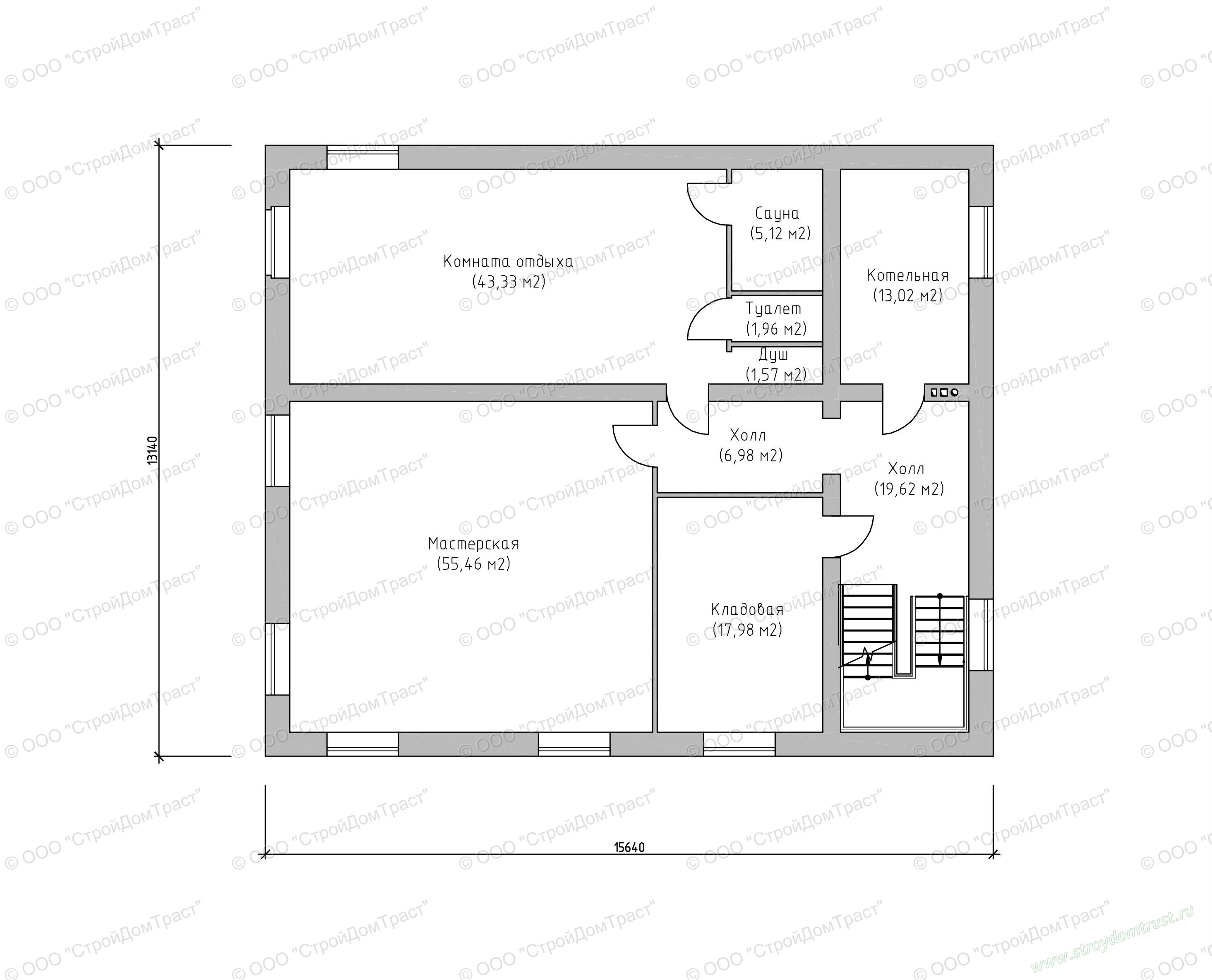
Хотя в цокольном этаже и располагаются котельная (13 кв.м) и кладовая (18 кв.м), его истинное назначение — быть местом, где обладатели дома смогут отдохнуть душой и телом. Здесь прячется сауна (5,12 кв.м), оборудованная душем (1,6 кв.м) и санузлом (2 кв.м). К сауне примыкает большая комната отдыха (43,3 кв.м), здесь поместится и бильярдный стол, и стол для тенниса, и большой телевизор с мягким диваном, и все, что понадобится хозяевам дома для полноценного отдыха в кругу семьи или в компании друзей. Кроме того, на этаже есть мастерская (55,5 кв.м), в которой хватит места для любого хобби. Холл разделен на две части (7 кв.м + 20 кв.м), таким образом котельная изолирована от жилых помещений.
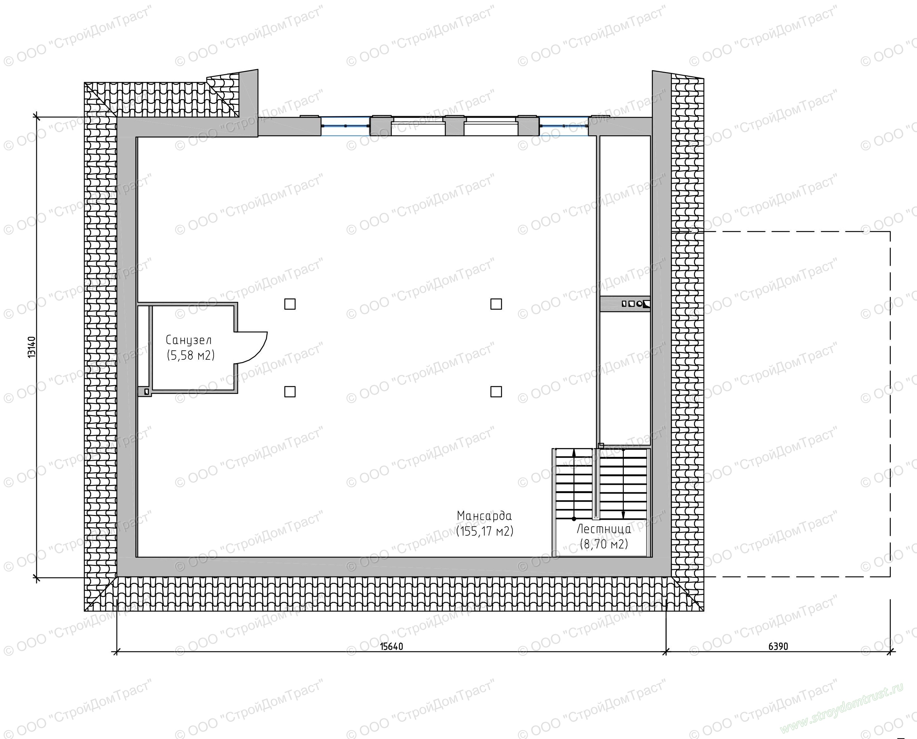
Мансарда представляет сбой единое пространство площадью 155 кв.м, оборудованное санузлом (5,6 кв.м). Здесь владельцы коттеджа смогут разместить все остальное, что им необходимо для счастливого существования: дополнительные спальни, кинотеатр, тренажерный зал и /или что-нибудь другое.
Указана цена строительства По запросу в оптимальной комплектации











