Дом из газобетона 23 х 19,2
По запросуПроект СДТ-1850
| Цена: | По запросу |
|---|---|
| Площадь: | 464 м2 |
| Материал стен: | газобетон |
| Кол-во этажей: | 2 |
| Кол-во спален: | 4 |
* цена строительства в оптимальной комплектации, стоимость проекта включена
Оцените проект
Назад в каталог
или смотреть
Каталог проектов от наших партнёров
Описание
Просторный особняк для людей с хорошим вкусом и большими запросами.
Дом представляет собой современное переосмысление классической архитектуры. Колонны, полукруглые эркеры и балконы, лепнина на стенах и декоративные карнизы — все эти элементы классического стиля делают дом похожим на дворянские особняки позапрошлого века. Однако использование современных отелочных материалов, сочетание контрастных цветов на фасаде и оригинальные узоры на стенах делают облик дома актуальным и стильным.
В доме комфортно разместится семья из 4–8 человек. Планировка дома хорошо проработана и позволит реализовать самые смелые дизайнерские идеи во время ремонта.
На первом этаже находится большая и светлая кухня-столовая (38,7 кв.м), где разместится все необходимое для приготовления пищи, трапезы в кругу семьи или приема гостей. Из кухни можно выйти не открытую террасу (на плане обозначена как входная группа) и выпить кофе на свежем воздухе. Рядом с кухней находится просторная гостиная (43,45 кв.м) с эркером. Оформить эту комнату можно по-разному, но лучше всего она будет смотреться в классическом стиле. На плане кухня, гостиная и удобный холл (32,3 кв.м) представляют собой единое пространство, полное света и воздуха. По желанию обладателей дома, это помещение может быть разделено дополнительными стенами на отдельные комнаты согласно функциональному назначению. Также на этаже находятся уютная жилая комната (18,2 кв.м), комфортная прихожая (11 кв.м) и совмещенный санузел (11,2 кв.м).
К дому примыкает гараж на несколько автомобилей (42,3 кв.м) с двумя входами (из дома и с заднего двора) и котельная.
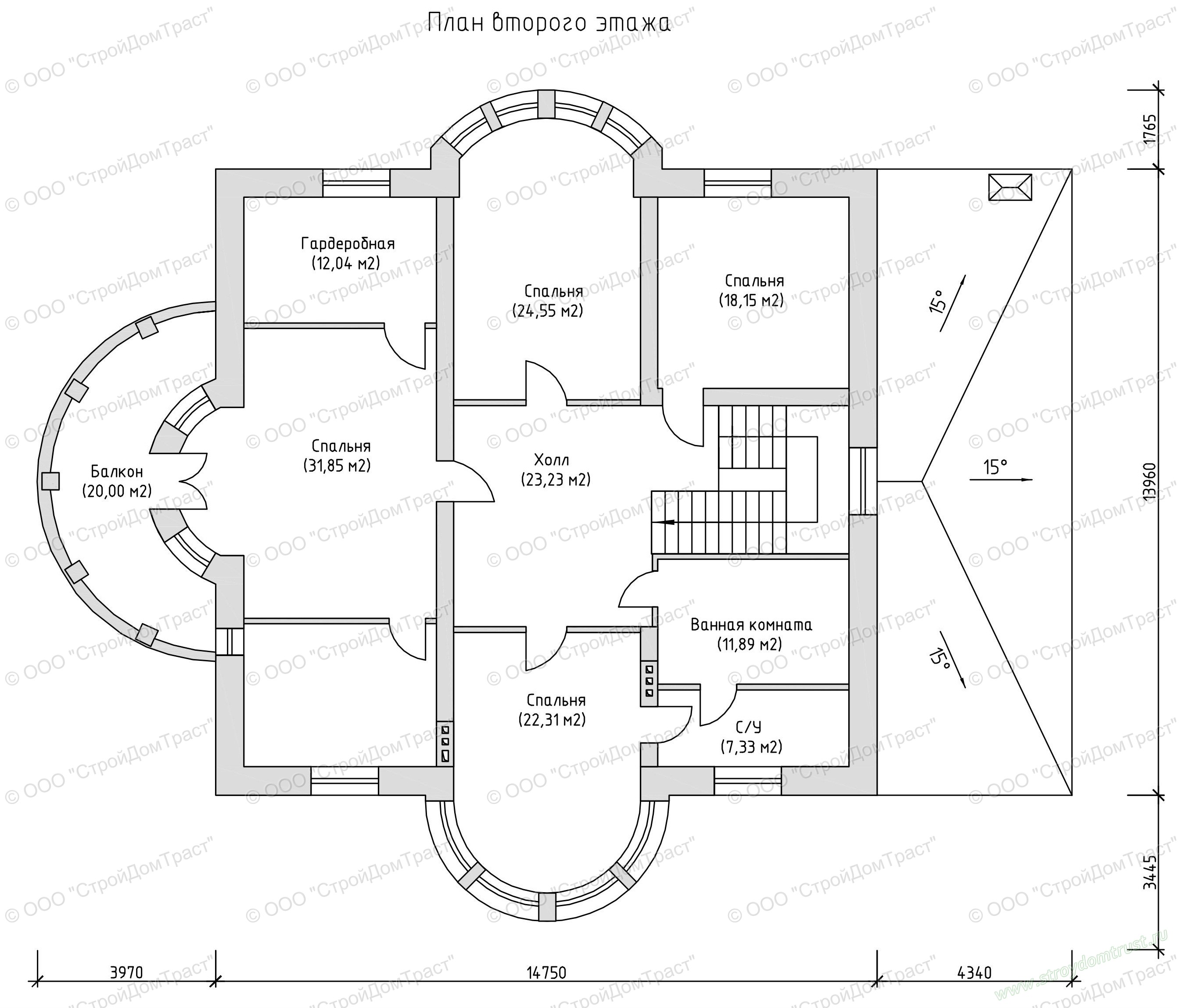
Наверху три великолепные спальни, каждая со своими сильными сторонами. Главная спальня (32 кв.м) имеет персональные гардеробную и санузел, а также вход на большой полукруглый балкон. Две другие спальни имеют полукруглые эркеры, а самая маленькая комната — правильную квадратную форму. Также на этаже находится общий раздельный санузел (12+7 кв.м) и довольно большой холл (23 кв.м), где можно устроить мини-гостиную или дополнительную зону отдыха.
Подвал представляет собой единое помещение площадью 50 кв.м, которое обладатели дома смогут использовать на свое усмотрение.
Указана цена строительства По запросу в оптимальной комплектации
















