Дом из газобетона на две семьи, дуплекс 23,91 х 12,82
9 089 242 руб.Проект СДТ-1868
| Цена: | 9 089 242 руб. |
|---|---|
| Площадь: | 329 м2 |
| Материал стен: | газобетон |
| Кол-во этажей: | 2 |
| Кол-во спален: | 4 |
* цена строительства в оптимальной комплектации, стоимость проекта включена
Оцените проект
Назад в каталог
или смотреть
Каталог проектов от наших партнёров
Описание
Современный коттедж на две семьи, где есть все необходимое для комфортного проживания.
Дом имеет практичную прямоугольную форму. Однако узор на фасаде, выполненный из облицовочного кирпича контрастных цветов, навесы и колонны крыльца и террасы, многоскатная крыша и гараж создают ощущение сложной многоуровневой формы здания. Коттедж снаружи разделен на две половины только с помощью декора на стене и выглядит цельным и органичным.
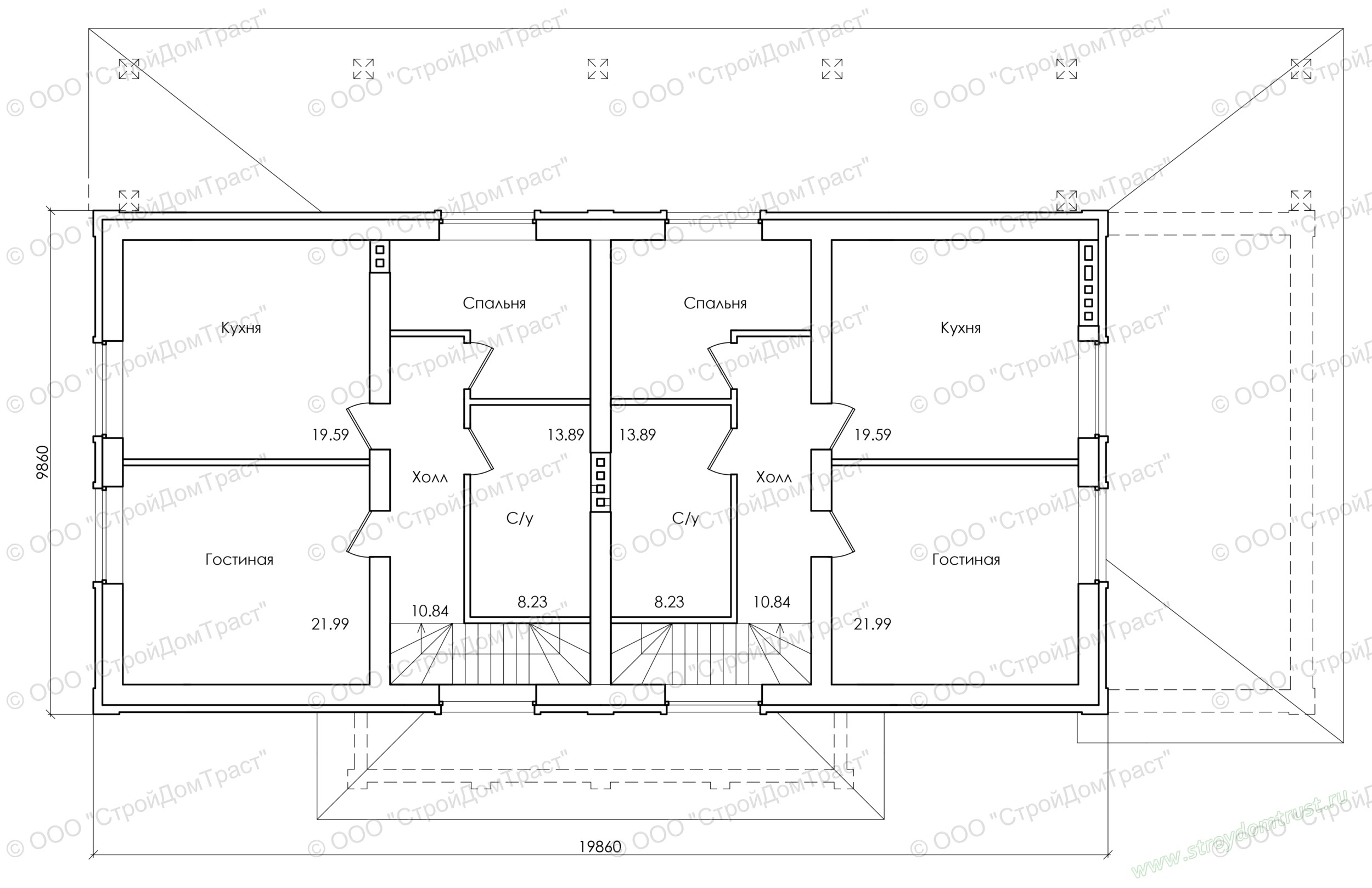
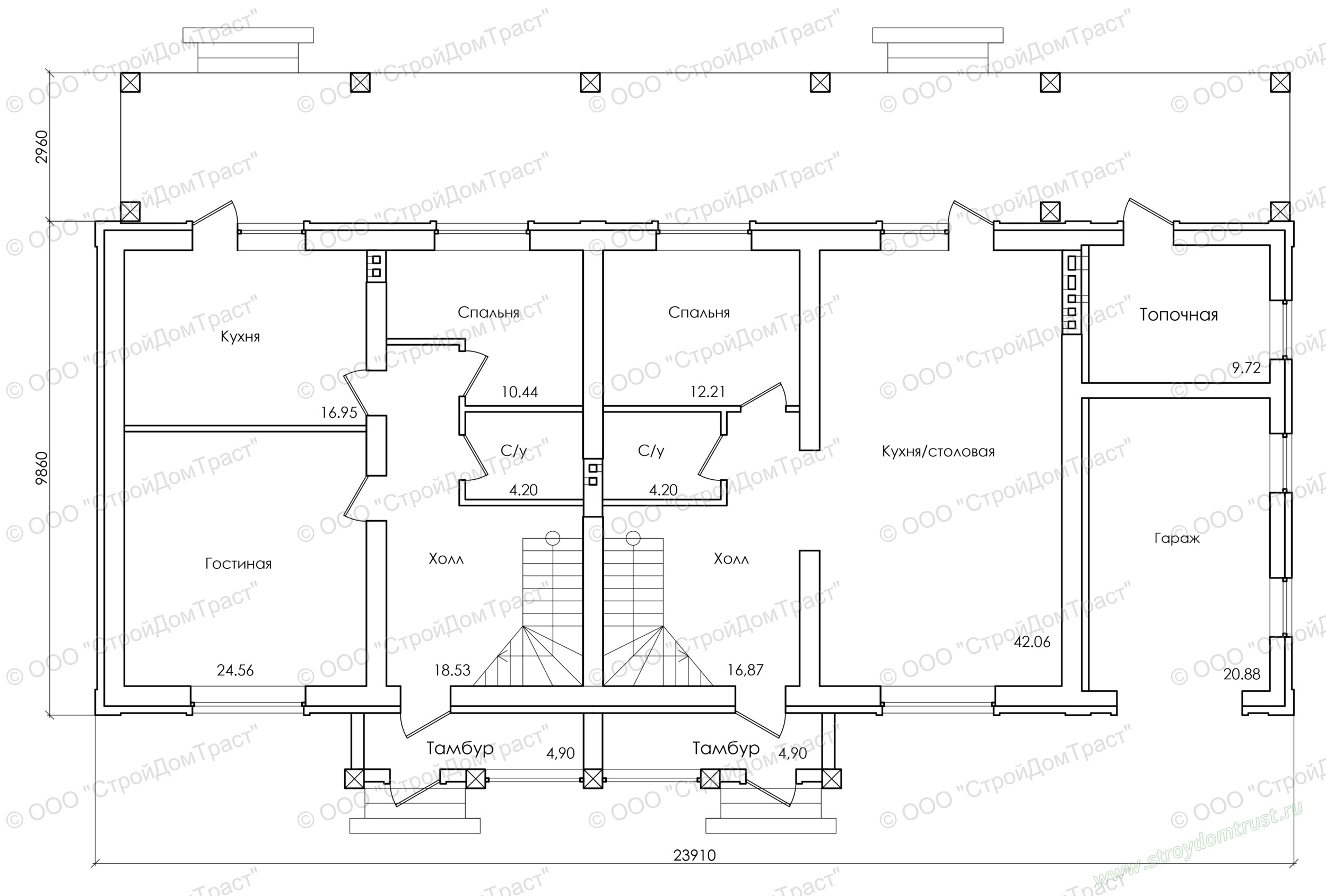
Внутри дом состоит из двух идентичных половин, зеркально отражающих друг друга (на плане первого этажа изображены варианты расстановки не несущих стен). Каждая половина имеет отдельный вход.
На первом этаже располагаются кухня и гостиная. Комнаты могут быть объединены в единое просторное помещение (42 кв.м) полное света и воздуха или разделяться перегородкой (16,9 + 24,5 кв.м), если обладатели дома предпочитают четкое функциональное зонирование. Из кухни можно выйти на общую террасу, где две дружные семьи смогут проводить время вместе.
Также внизу находится небольшая спальня (10,4/12,2 кв.м), которую можно использовать как кабинет, санузел (4,2 кв.м), тамбур (4,9 кв.м) и холл (16,9/18.5 кв.м).
Наверху три комнаты (13.9, 19.6 и 22 кв.м), которые владельцы дома могут использовать как спальни или в любом другом качестве: устроить здесь дополнительную гостиную, игровую, тренажерный зал и др. Кроме того, на этаже есть удобный санузел (8,2 кв.м). Все помещения объединяет эргономичный холл (10,8 кв.м).
С одной стороны к дому примыкает топочная (9,7 кв.м) общей отопительной системы (вход в помещение со двора) и гараж (20,8 кв.м).
Указана цена строительства 9 089 242 руб. в оптимальной комплектации

















