Дом из газобетона 9,74 х 13,24
По запросуПроект СДТ-1848
| Цена: | По запросу |
|---|---|
| Площадь: | 163 м2 |
| Материал стен: | газосиликат |
| Кол-во этажей: | 2 |
| Кол-во спален: | 3 |
* цена строительства в оптимальной комплектации, стоимость проекта включена
Оцените проект
Назад в каталог
или смотреть
Каталог проектов от наших партнёров
Описание
Лаконичный современный коттедж для тех, кто предпочитает удобство внешнему лоску.
Дом имеет классическую прямоугольную форму, однако выглядит современно за счет использования для отделки стен облицовочного кирпича контрастных цветов и необычной многоскатной крыши. Украшения из балок на фронтоне и крыльце дома придают ему уютный вид.
Планировка дома эргономична и хорошо продумана. Дом предназначен для комфортного проживания семьи из 3–5 человек.
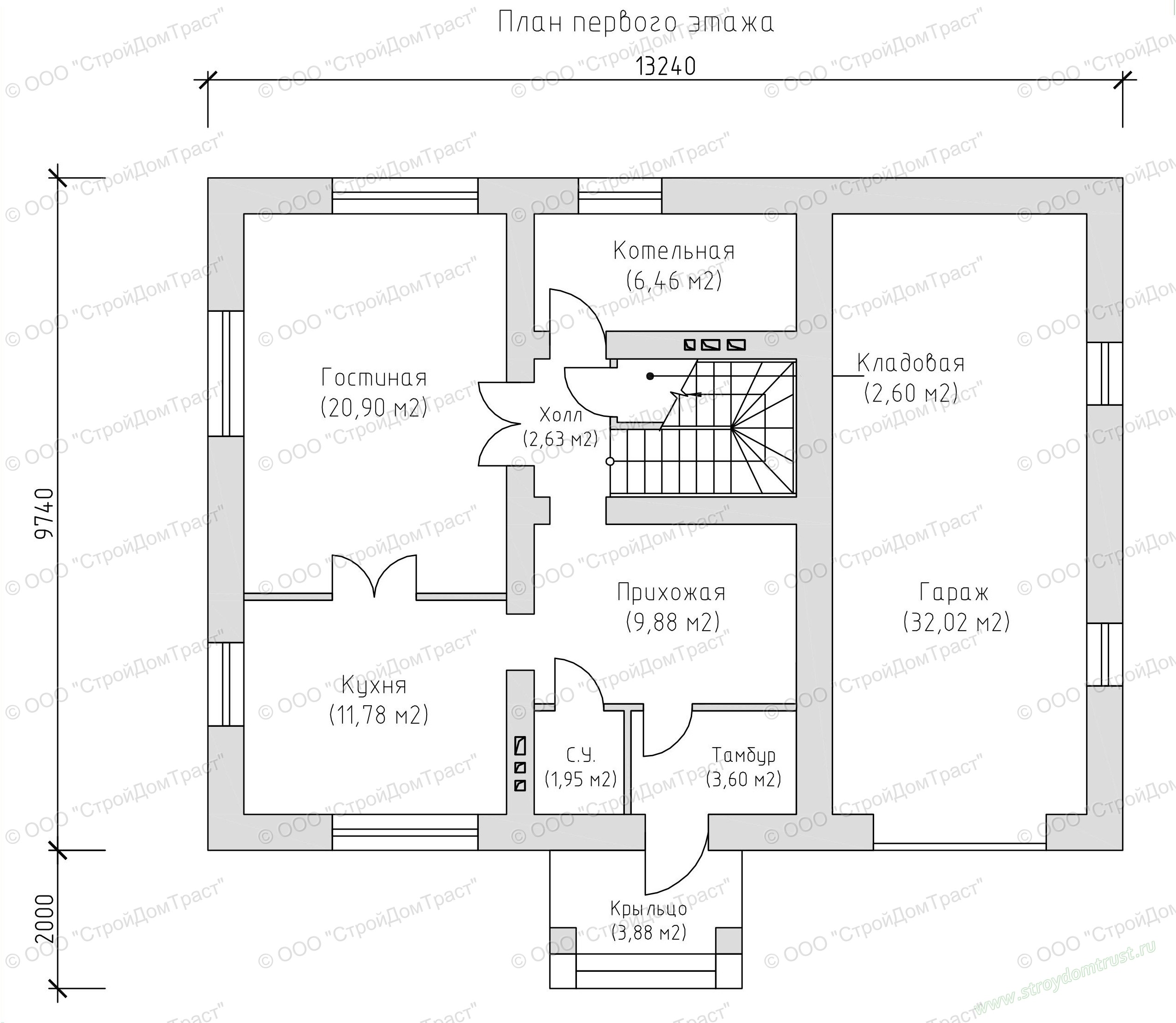
На первом этаже находится удобная кухня (11,78 кв.м), где поместится все необходимое для приготовления и приема пищи. С кухней сообщается гостиная (20,9 кв.м), в которой удобно будет провести время в кругу семьи или принять гостей. Кухня и гостиная разделены не несущей стеной, поэтому могут легко превратиться в просторную полную света студию по желанию обладателей дома. Также на этаже располагаются небольшой тамбур (3,6 кв.м), комфортная прихожая (9,9 кв.м), санузел (1,95 кв.м), котельная (6,46 кв.м), под лестницей прячется компактная кладовая (2,6 кв.м).
К первому этажу дома примыкает большой гараж для нескольких автомобилей (32,02 кв.м).
На втором этаже три спальни (17,8, 15,9 и 12,8 кв.м). Самая маленькая спальня имеет бонус в виде персонального балкона. Также наверху есть удобная ванная комната (6,5 кв.м).
Указана цена строительства По запросу в оптимальной комплектации
















