Двухэтажный кирпичный дом на 206 кв. м с гаражом
5 855 037 руб.Проект СДТ-450
| Цена: | 5 855 037 руб. |
|---|---|
| Площадь: | 206,1 м2 |
| Материал стен: | кирпич |
| Кол-во этажей: | 2 |
| Кол-во спален: | 5 |
* цена строительства в оптимальной комплектации, стоимость проекта включена
Оцените проект
Назад в каталог
или смотреть
Каталог проектов от наших партнёров
Описание
Современный загородный особняк отличают оригинальное объёмное планировочное решение, выразительная многоскатная кровля с вертикальными «слуховыми» окнами, изысканный декор фасада в виде стилизованных колонн по углам здания. Такими же колоннами, но уже не стилизованными, а настоящими, оформлен главный вход в дом и небольшая крытая терраса. Дом предназначен для постоянного проживания небольшой семьи в составе 3-5 человек.
Слева от входа в дом находится помещение для гаража, котельной и санузла, встроенное в основной объём особняка, справа – помещение кухни. Далее следует просторный холл, плавно перетекающий в столовую и гостиную. Из столовой имеется выход на террасу. Также на этаже в помещении холла имеются встроенные гардеробные шкафы, а под лестницей помещение кладовой.
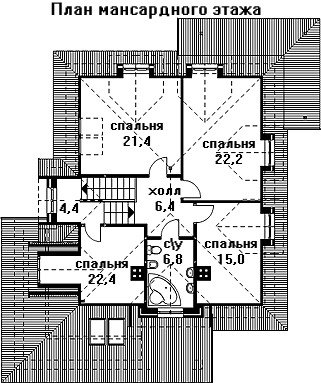
По лестнице из холла можно подняться на мансардный этаж, где расположена зона для отдыха. Она состоит из трёх спален и ванной комнаты с джакузи. Ещё одна спальня, гостевая, расположена ниже уровнем – над помещением гаража.
Фундамент - ленточный монолитный ж/б
Перекрытия - монолитные ж/б
Покрытие кровли - металлочерепица
Наружная отделка - штукатурка
Высота первого этажа - 2.8 м ,
мансардного - 0.9 м / 2.7 м
Указана цена строительства 5 855 037 руб. в оптимальной комплектации













