Загородный двухэтажный дом из кирпича с 4 комнатами
3 153 846 руб.Проект СДТ-351
| Цена: | 3 153 846 руб. |
|---|---|
| Площадь: | 113,7 м2 |
| Материал стен: | кирпич |
| Кол-во этажей: | 2 |
| Кол-во спален: | 4 |
* цена строительства в оптимальной комплектации, стоимость проекта включена
Оцените проект
Назад в каталог
или смотреть
Каталог проектов от наших партнёров
Описание
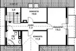
Даже архитектура этого двухэтажного кирпичного загородного дома насыщена теплом и уютом. Вход в помещение дома располагается с фронтальной стороны здания через небольшое крыльцо, ведущее в тамбур, а также через солнечную привлекательную террасу, которая находится со стороны правого крыла. Терраса открывает вход в объединенное помещение гостиной со столовой. Холл позволяет пройти в хозяйственное помещение, компактную кухню с выходом во вместительную кладовую, а также в гостиную-столовую и санузел.
Нишу в холле занимает лестница, ведущая на второй этаж дома. Второй этаж выполнен в виде мансарды, в помещении которой расположились три спальные комнаты, одна из которых имеет выход на уютный балкон. Также здесь находится ванная комната с санузлом.
Фундамент - ленточный монолитный ж/б
Перекрытия - монолитные ж/б
Покрытие кровли - металлочерепица
Наружная отделка - штукатурка
Высота первого этажа - 2,8 м
Мансардного - 1,2 м / 2,6 м
Идеальный проект для строительства в Подмосковье.
Указана цена строительства 3 153 846 руб. в оптимальной комплектации












