Проект кирпичного дома с оригинальной мансардой
6 682 202 руб.Проект СДТ-527
| Цена: | 6 682 202 руб. |
|---|---|
| Площадь: | 272,8 м2 |
| Материал стен: | кирпич |
| Кол-во этажей: | 2 |
| Кол-во спален: | 4 |
* цена строительства в оптимальной комплектации, стоимость проекта включена
Оцените проект
Назад в каталог
или смотреть
Каталог проектов от наших партнёров
Описание
Современный сельский загородный дом на две семьи отличается оригинальным конструкторским решением мансардного этажа с многоскатной крышей и вертикальными мансардными окнами-скворечниками.
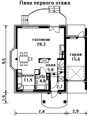
Главный вход в дом оформлен стройными пилонами и укрыт нависающим скатом основной кровли. Через небольшой тамбур, в котором устроен гардеробный шкаф, попадаем в холл с лестницей, и, далее, в единое пространство столовой-гостиной-кухни с большим камином в центре помещения. Из гостиной имеется выход на придомовую террасу. Въезд в гараж находится рядом с главным входом. На территории мансарды имеются две спальни с выходом на балкон и ванная, комната под спальню хозяев имеет персональную гардеробную комнату. Над помещением гаража разместилась бильярдная.
Фундамент - ленточный монолитный ж/б
Перекрытия - монолитные ж/б
Покрытие кровли - металлочерепица
Наружная отделка - штукатурка
Высота первого этажа - 2.8 м ,
мансардного - 1.0 м / 3. 0 м
Указана цена строительства 6 682 202 руб. в оптимальной комплектации














