Каркасный дом 11 x 11 и площадью 200 кв.м.
4 021 224 руб.Проект СДТ-1808
| Цена: | 4 021 224 руб. |
|---|---|
| Площадь: | 200 м2 |
| Материал стен: | каркасный |
| Кол-во этажей: | 2 |
| Кол-во спален: | 3 |
Оцените проект
Назад в каталог
или смотреть
Каталог проектов от наших партнёров
Описание
Современный коттедж в швейцарском стиле для семьи из 3–7 человек.
Облик этого дома — воплощение мечты об уютном и экологичном жилище. При отделке фасада используются облицовочный кирпич и деревянный сайдинг естественных цветов. Окна второго этажа имеют оригинальную форму и напоминают о шале в заснеженных Альпах. Крыльцо и террасу украшают деревянные перила и колонны, на которых великолепно будут смотреться вазоны с цветами.
Планировка дома продумана до мельчайших деталей.
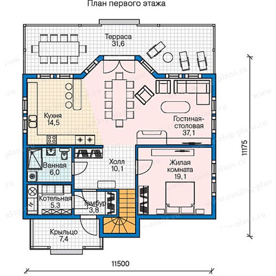
Внизу располагается просторная и очень светлая кухня-гостиная (51,6 кв.м) с эркером. Эта комната прекрасно подойдет и для общения в кругу семьи, и для приема гостей. Из гостиной можно выйти на просторную крытую террасу (31,6 кв.м), на которой поместится и дополнительная обеденная группа, и шезлонги, и все необходимое для отдыха в теплое время года. Также на первом этаже есть жилая комната (19 кв.м), которая может быть гостевой или основной спальней, рабочим кабинетом. Кроме того, этаж оборудован ванной (6 кв.м), котельной (5,3 кв.м), тамбуром (3,8 кв.м) и холлом (10 кв.м). Пространство дома используется очень эффективно, так лестница убрана в эркер, а под ней располагается шкаф для верхней одежды и/или обуви.
Наверху три удобные спальни разного размера и формы. Главная спальня имеет самую большую площадь (23,4 кв.м), эркер, отдельные гардеробную (6,4 кв.м) и ванную (7, кв.м). Также на втором этаже предусмотрен санузел (2,4 кв.м), общая гардеробная (9 кв.м) и холл (10.6 кв.м).
Фундамент: армированная ж/б лента
Перекрытия: по деревянным балкам
Крыша: мансардная
Кровля: металлочерепица
Размеры: 11 x 11 м
Гараж: нет
Цокольный этаж: нет
Сауна: нет
Балкон: нет
Терраса: нет










