Каркасный дом 150 кв.м.
3 116 448 руб.Проект СДТ-1805
| Цена: | 3 116 448 руб. |
|---|---|
| Площадь: | 155 м2 |
| Материал стен: | каркасный |
| Кол-во этажей: | 2 |
| Кол-во спален: | 2 |
Оцените проект
Назад в каталог
или смотреть
Каталог проектов от наших партнёров
Описание
Необычный коттедж с элементами швейцарского стиля для семьи из 2–5 человек.
Этот дом понравится тем, кто ценит оригинальные детали и креативный взгляд на классические каноны.
Коттедж имеет почти квадратную форму и двускатную крышу. На фасаде сочетаются облицовочный камень, штукатурка и деревянный сайдинг. Все это вполне традиционно для швейцарских шале. Однако сайдинг уложен нестандартно и образует интересный узор. На фронтоне и под навесом крыльца расположены эффектные деревянные украшения, придающие дому более современный вид. Окна, имеющие разный размер и форму, также делают облик дома более актуальным и запоминающимся.
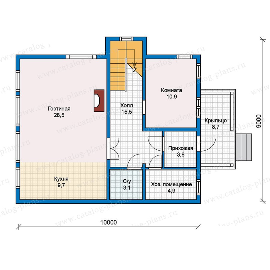
На первом этаже находится большая кухня-гостиная (38,2 кв.м) с прекрасным естественным освещением и камином. Прямоугольная форма комнаты позволит легко выполнить функциональное зонирование с учетом потребностей обладателей дома. Также внизу есть жилая комната (11 кв.м), которая может стать гостевой спальней или рабочим кабинетом. Этаж оборудован санузлом (3,1 кв.м), прихожей (3,8 кв.м), хозяйственным помещением (5 кв.м) и удобным холлом (15,5 кв.м).
Наверху две комфортабельные спальни одинаковой формы и площади (18,7 кв.м). Напротив них еще две жилые комнаты (по 11 кв.м). Здесь могут расположиться дополнительные спальни, гардеробная, мастерская, кабинет или небольшой тренажерный зал. На этаже есть санузел (4,8 кв.м) и холл (6,7 кв.м).
Фундамент: монолитная плита
Перекрытия: по деревянным балкам
Крыша: мансардная
Кровля: металлочерепица
Габариты: 9x10 м
Гараж: нет
Цокольный этаж: нет
Сауна: нет
Балкон: нет
Терраса: нет










