Проект дома-замка из кирпича в 2 этажа с эркером и фигурной крышей
5 563 095 руб.Проект СДТ-165
| Цена: | 5 563 095 руб. |
|---|---|
| Площадь: | 178,5 м2 |
| Материал стен: | кирпич |
| Кол-во этажей: | 2 |
| Кол-во спален: | 4 |
* цена строительства в оптимальной комплектации, стоимость проекта включена
Оцените проект
Назад в каталог
или смотреть
Каталог проектов от наших партнёров
Описание
Благодаря большой площади остекления максимальное количество солнечного тепла и света будет ежедневно радовать владельцев этого особняка. Коттедж предлагает площадь 178,5 кв. м. и рассчитан для круглогодичного проживания немногочисленной семьи за пределами города. Фасады здания украшены большими окнами, часть из которых имеет форму арок, а также глубоким многогранным эркером, размещенным по центральной оси. Оба этажа коттеджа имеют простую и компактную планировку, обеспечивающую максимальный комфорт членам проживающей в нем семьи и их гостям.
Основную часть первого этажа занимает единое двусветное помещение, совмещающее в себе территорию гостиной, столовой и кухни, при этом здесь же находится и лестница на второй этаж. Главным украшением основной комнаты в коттедже является глубокий эркер, занимающий практически половину внешней стены дома.
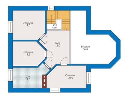
В особняке проектом предусмотрено наличие четырех спаен, три из которых - на втором этаже, а одна на первом.
Общая площадь 178.5
Габариты здания: ширина 1 (мм.) 11000
Габариты здания: ширина 2 (мм.) 15580
Тип фундамента Ленточный
Материал несущих стен Кирпич. Керамические крупноформатные поризованные блоки.
Толщина внешних стен (мм.) 510
Конструкция пола
Конструкция кровли чердачная
Кровельный материал Металлочерепица. или Гибкая черепица
Материал отделки фасада Облицовочный кирпич.
Материал отделки цоколя Декоративный камень.
Высота потолков
Высота потолков мансардного этажа (мм.) 3000
Указана цена строительства 5 563 095 руб. в оптимальной комплектации





















