Проект дома из газобетона для участка с уклоном
По запросуПроект СДТ-1862
| Цена: | По запросу |
|---|---|
| Площадь: | 380 м2 |
| Материал стен: | газобетон |
| Кол-во этажей: | 2 |
| Кол-во спален: | 4 |
* цена строительства в оптимальной комплектации, стоимость проекта включена
Оцените проект
Назад в каталог
или смотреть
Каталог проектов от наших партнёров
Описание
Современный коттедж, специально спроектированный для участков с уклоном.
Не смотря на специфические архитектурные особенности дом получился стильным и аккуратным. На фасаде сочетаются облицовочные кирпич и камень. Крыльцо, террасу и балконы украшают колонны. Завершает образ асимметричная многоскатная крыша. Благодаря всем этим элементам дом прямоугольной формы выглядит объёмнее и интереснее.
Планировка дома хорошо продумана и подходит для проживания семьи из 4–8 человек.
На первом этаже располагаются удобная кухня (19,3 кв.м), в которой поместится все необходимое для приготовления и приема пищи. Рядом — гостиная (24,5 кв.м), где обладатели дома смогут проводить вечера в кругу семьи или в компании гостей. Комнаты соединяет проход-арка. При желании их легко объединить в просторную прямоугольную кухню-гостиную. Из кухни можно выйти на большую крытую террасу (45,6 кв.м). Здесь можно устроить превосходную зону отдыха в теплое время года, разместив здесь обеденную группу, диваны, шезлонги и другие необходимые для отдыха вещи.
Также на этаже находится одна из спален (18,9 кв.м), которую можно использовать в качестве кабинета. Кроме того, здесь есть санузел (13,3 кв.м), топочная (11 кв.м) и холл (25,3 кв.м), в котором поместится и прихожая, и даже дополнительная мини-гостиная.
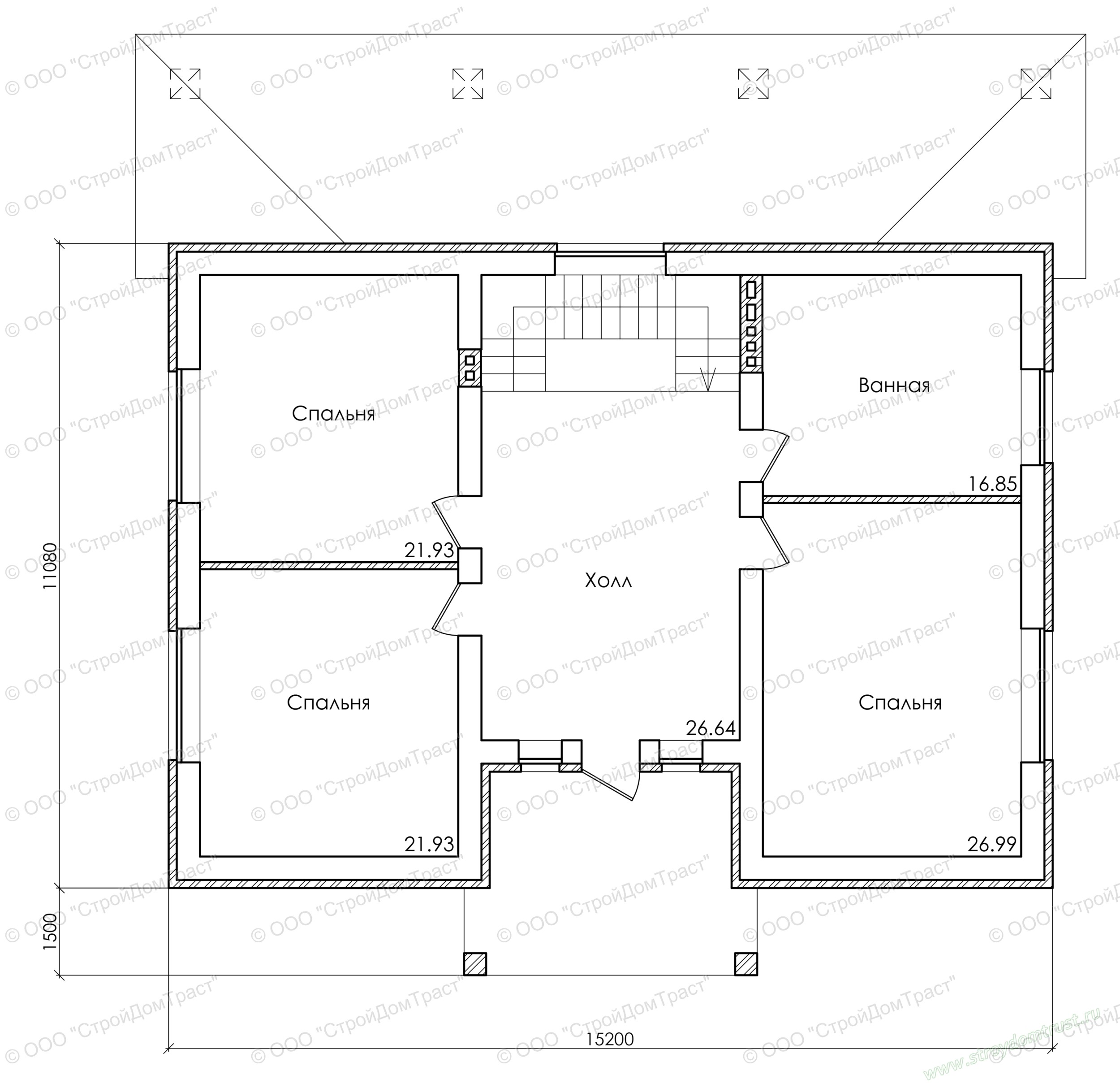
В мансардном этаже три спальни: две из них одинакового размера (22 кв.м), третья — чуть больше (27 кв.м). На этаже предусмотрена большая ванная (17 кв.м). Все помещения объединяет холл (26,6 кв.м), из которого можно выйти на балкон.
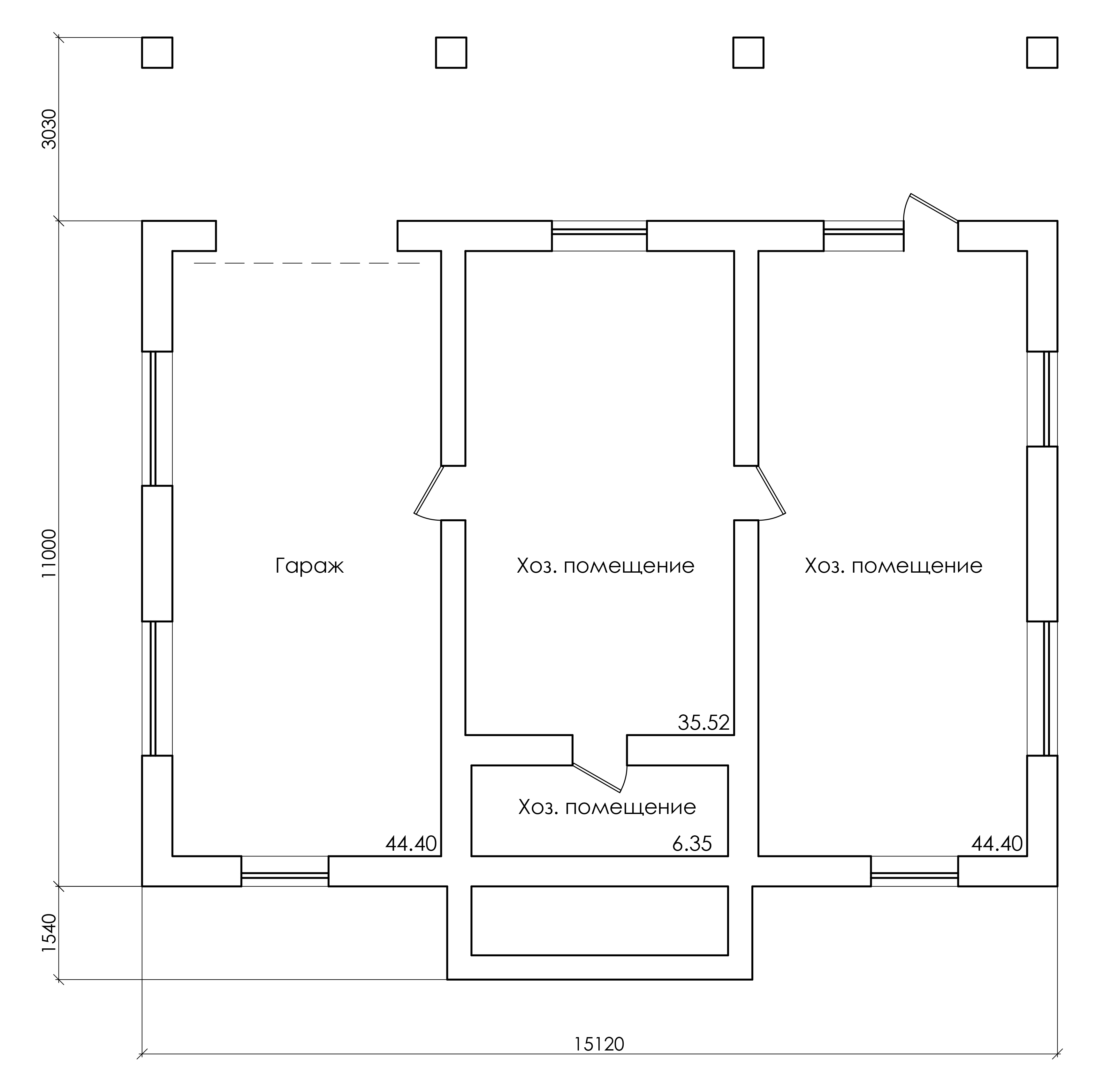
Дом оборудован цокольным этажом, в котором поместился гараж на два автомобиля (44,4 кв.м) и три хозяйственных помещения разного размера (44, 36 и 6 кв.м). При желании большие комнаты можно разделить дополнительными перегородками. Здесь хозяева дома могут устроить сауну с комнатой отдыха, и/или разместить кладовые, постирочную, мастерскую, тренажерный зал и другое. Ведь благодаря конструкции дома цокольный этаж имеет полноценное естественное освещение.
Кроме всего прочего, терраса, примыкающая к первому этажу, поддерживается колоннами на уровне цоколя, таким образом образуется еще одна крытая терраса. Немногие дома могут порадовать своих обладателей таким количеством мест для отдыха!
Указана цена строительства По запросу в оптимальной комплектации


















