Одноэтажный дом из газобетона 17,58 х 13,8
5 757 372 руб.Проект СДТ-1854
| Цена: | 5 757 372 руб. |
|---|---|
| Площадь: | 115 м2 |
| Материал стен: | газосиликат |
| Кол-во этажей: | 1 |
| Кол-во спален: | 3 |
* цена строительства в оптимальной комплектации, стоимость проекта включена
Оцените проект
Назад в каталог
или смотреть
Каталог проектов от наших партнёров
Описание
Стоимость этого дома под ключ с внутренней и наружной отделкой, отоплением, септиком, электрикой по дому, водой и канализацией по дому, с чистовой отделкой 10 659 434 руб. (останется только мебель завезти).
Комфортабельный одноэтажный коттедж для практичных людей.
Внешний вид дома аккуратен и лаконичен, он придется по вкусу тем, кто ценит простоту и удобство выше пышного убранства. Стены дома отделаны облицовочным кирпичом. Сейчас производители этого материала предлагают широчайшую палитру оттенков, так что цвет дома может быть любым. А сочетание двух контрастных цветов кирпича на фасаде позволит кардинально изменить облик дома. Многоскатная крыша придает дому уютный вид.
Коттедж рассчитан на семью из 3–5 человек.
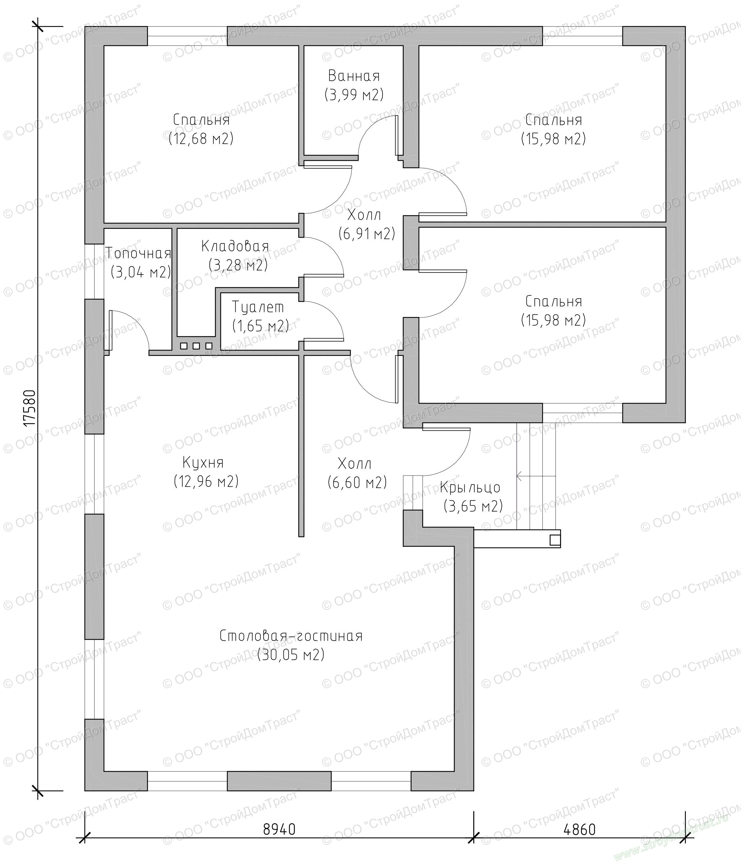
Большая кухня-гостиная (33 кв.м) порадует гостеприимных хозяев. Форма комнаты позволяет без труда выполнить функциональное зонирование, но не ограничивает фантазию при составлении дизайн-проекта. При желании кухню можно отделить от гостиной, поставив всего одну дополнительную перегородку.
В доме три спальни: две из них имеют одинаковый размер (16 кв.м), третья чуть меньше (13 кв.м).
Рядом со спальнями находятся ванная (4 кв.м) и туалет (1,65 кв.м). В доме предусмотрена кладовая (3,3 кв.м), которую можно использовать, как небольшую гардеробную. Холл, соединяющий все помещения, разделен на две половины (6,6 + 6,9 кв.м) стеной и дверью. Такое решение позволяет изолировать спальни от гостиной и обеспечит дополнительную звукоизоляцию.
Также дом оборудован топочной (3 кв.м).
Указана цена строительства 5 757 372 руб. в оптимальной комплектации










