Двухэтажный кирпичный дом 9Х14 м в с панорамными окнами
6 349 713 руб.Проект СДТ-189
| Цена: | 6 349 713 руб. |
|---|---|
| Площадь: | 114 м2 |
| Материал стен: | кирпич керамические крупноформатные поризованные блоки |
| Кол-во этажей: | 2 |
| Кол-во спален: | 4 |
* цена строительства в оптимальной комплектации, стоимость проекта включена
Оцените проект
Назад в каталог
или смотреть
Каталог проектов от наших партнёров
Описание
Отличный двухуровневый коттедж из кирпича привлекает своей невысокой стоимостью для такой достаточно большой площади и обширного состава помещений. Коттедж порадует логичной рациональной внутренней планировкой, а также приятной глазу отделкой фасадов. Очаровательные многогранные эркеры в один этаж оборудованы собственной небольшой крышей и высокими оконными проемами. Арочной формы окна второго этажа подчеркивают изящный стиль экстерьера данного особняка. В таком доме семья из 3-4 человек будет комфортно чувствовать себя в течение круглого года.
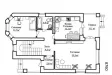
Состав помещений первого этажа минимален и включает в себя большую гостиную комнату площадью 25,3 кв. м., а также кухню-столовую и спальню. Второй этаж полностью отдан под три уютные спальные комнаты площадью 9 кв. м., 13,7 кв. м. и 17,2 кв. м. Тут же размещен общий санузел.
Общая площадь 114
Габариты здания: ширина 1 (мм.) 13750
Габариты здания: ширина 2 (мм.) 8760
Тип фундамента Ленточный фундамент
Материал несущих стен Кирпич. Керамические крупноформатные поризованные блоки.
Перекрытия Железобетонные плиты перекрытия.
Конструкция кровли мансардная
Кровельный материал керамическая черепица
Материал отделки фасада кирпич/штукатурка
Материал отделки цоколя Декоративный камень.
Высота потолков
Высота потолков мансардного этажа (мм.) 3000
Указана цена строительства 6 349 713 руб. в оптимальной комплектации





















